Hilde-Domin-Schule
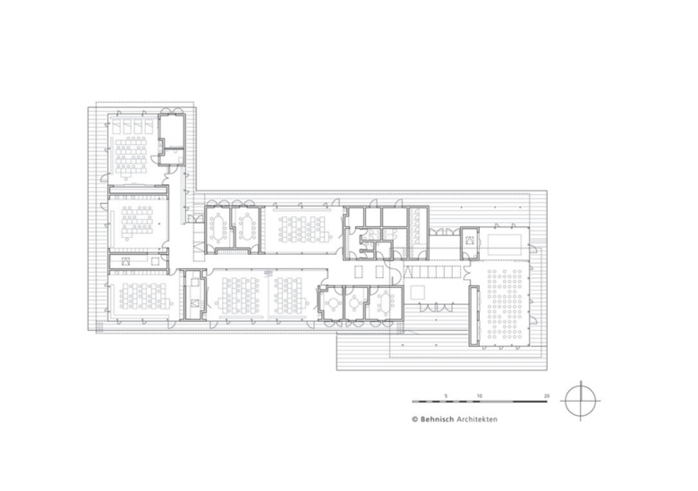
In 2004 Behnisch Architekten were commissioned with the extension of the award-winning single and two storey school complex for domestic economics and agriculture in Herrenberg, which was realised by Behnisch & Partner in 1983. The extension, a single storey timber frame pavilion building, which houses a range of classrooms, offices and technical spaces, has been erected to the south of the existing main complex with commanding views out over the undulating landscape.
With its projecting roofs and timber terraces it seems to float above the site like a raft. Its simple, unobtrusive low-lying form is calmly integrated into the overall complex, its dimensions corresponding to those of its mature neighbour, whilst the chosen materials provide a welcome contrast.
The new pavilion building has been constructed extensively of local timber. Its facades are playfully composed of opaque and glazed areas. The support rooms are arranged in the floor plan as seemingly closed boxes.
In contrast the classrooms are positioned quite naturally between these structures. Full height glazed facades and glazed partitions to the corridors create a light and open spatial structure.
The rooms reserved for fine art and handicrafts have parquet flooring, all other floors are covered with bold green linoleum which creates the impression that the surrounding meadows and fields continue inside the building itself. The ribbed roof construction is lined with wooden battens. The lighting and media supplies have been fully integrated into the construction.
Brief
Domestic and Agriculture School
Client
Landratsamt Böblingen
Architecture
Behnisch Architekten
Direct Commission
2004
Completion
2007
Gross
1,200 m² / 12,916 sq.ft.
Volume
5,690 m³ / 200,940 cu.ft.
Award
2009 Beispielhaftes Bauen im Landkreis Böblingen
- Jahr
- 2007
- Projektstatus
- Gebaut





