公园礼盒
项目位于河源市客家儿童公园内,作为儿童公园有机的一部分,建筑为园区游客提供茶饮轻食的同时也满足游客休憩、交流、观景等活动。建筑旨在创造一个活跃且具有鲜明个性的服务型公共空间,同时能与周边环境有更多的对话。
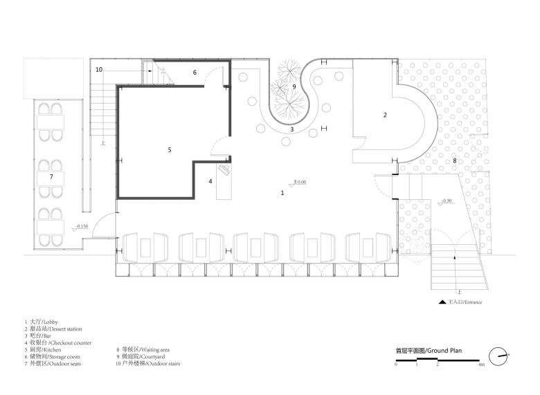
基地是一块具有高差的平台,南面、西面、北面紧邻游乐设施,东面为开阔的入口广场,设计将建筑体量面向东广场悬挑,呼应前广场的同时使得微小的建筑体量得以强调,面向前广场的可开启的铝板拉伸网立面,根据季节、光照及使用需求可以调整角度或者关闭,给室内提供开阔的景观视野。
嵌入地块的U型入口楼梯既消除了高差又具有强烈的引导作用,北面凸出的半圆形雪糕售卖站是一个相对独立的功能体,服务于那些不进店消费但对雪糕、饮品有需求的人群。半圆形雪糕售卖站与摩天轮产生了视觉关联。
西面内凹的弧形景观庭院与弧形的过山车轨道遥相呼应,庭院绿植给室内增添活力。南面由于紧贴园区电房控制室,利用电房突出的体块半围合成一个室外休闲空间,经过此空间上楼梯到屋顶平台,屋顶的采光井为室内提供了充足的光照。
建筑设计保持与周围环境、游乐设施的呼应及密切的互动,基于对于周边环境及设施的考量,以一种整体性的表达来回应周边现状,这种表达无论在色彩上还是体量上与周边建筑都存在差异,差异并没有让建筑孤立,反而这个轻盈材料所覆盖的金属建筑跟整个园区融为一体。
设计选择以轻盈的金属材料体现园区的建筑特征,选择以简单的建筑形态与周边造型各异、张扬的游乐设施形成鲜明对比。色彩运用上保持整体统一,强烈的可识别性,橙色既融于环境又带有自身独特的标识。
我们期望基于环境构建具有场所精神的建筑,为功能单一、形式多样的儿童乐园注入新的建筑形态,这种建筑形态既与环境相融又具有强烈识别性。
- Jahr
- 2019
- Projektstatus
- Gebaut
- Team
- Jun Liao, Danping Chen, Heng Yang, Musen Li, Huichun Qiu, Lei Li, Jiapeng Wu(intern), Baichun Huang(intern)



















