Basisschool Dender
Dit ontwerp ontsnapt aan de alom tegenwoordige verkleutering en ‘disneyfication’ van kinderen. Door hen een uitgesproken nieuwsoortige ruimte te geven, die niet direct beantwoordt aan de maatschappelijk aanvaarde kindertaal, willen we hen uitdagen, nieuwsgierig maken, doen verbeelden op een manier die volwassenen niet meer schijnen te kunnen. Het ontwerp voldoet niet aan de te verwachten veilige geborgenheid waarmee westerse kinderen worden omzachteld: het heeft veel te grote ramen, veel te veel kleuren, veel te veel doorzichten, veel te hoge deuren, veel te gekke prints... (de kinderen hebben er geen moeite mee).
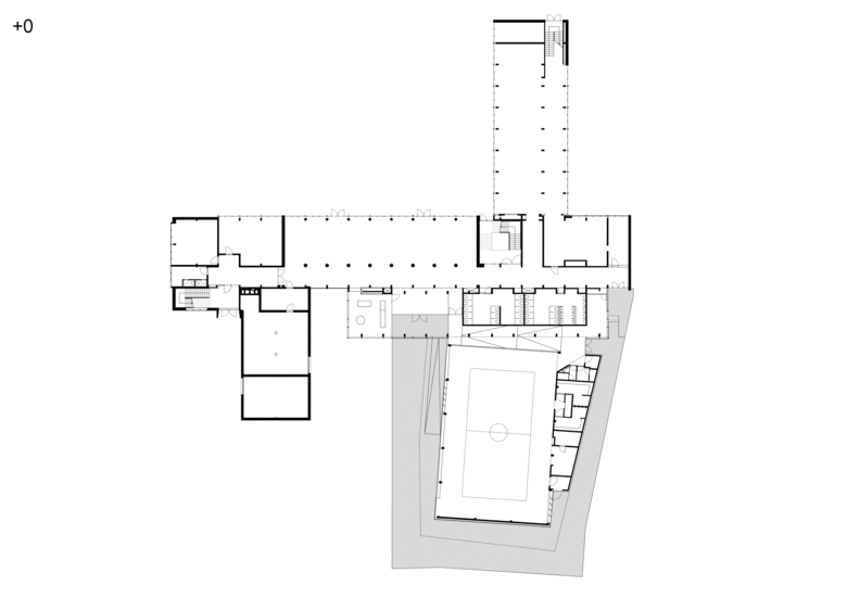
De basisschool nestelt zich in een absurd volgestouwd binnengebied aan de Dender, De uitbreiding met 8 extra klassen en een grote polyvalente ruimte verhoogt de druk op de restruimte nog even exponentieël.
De twee programma-onderdelen halen we vanaf het begin netjes uit elkaar. Een driehoog klassen-balkje van 6meter op 36 meter en 10 meter hoog wordt tegen de bestaande voorgevel geplaatst. Hierdoor recupereren we niet enkel de bestaande gang en riante verdiepingshoogte, de oude school krijgt er aan de noordzijde meteen een duurzame,
isolerende schil bij. En een face-lift in de vorm van een freile glazen structuur, een uitvergrote kijkdoos. Tussen de gang en de nieuwe klassen steekt één grote kast als een soort veredeld en functioneel littekenweefsel.
De polyvalente zaal is als een glazen kei op het binnengebied gelegd en lichtjes de school ingeschoven. Een stalen luifel omkranst het monovolume en leidt kinderen en ouders meteen naar de nieuwe hoofdinkom.
Kei en casco als ruimtelijk strategisch speelgoed.
- Jahr
- 2009
- Projektstatus
- Gebaut










