Group Housing Mechelen
This project presents, in many ways, a border situation. Continuing on an existing masterplan, the berm block, though located on a prominent location in a new park-like residential quarter, flanks the busiest railway connection in the world. This renders the building with a local, regional and international scope at the same time. The building demarks the border between the kinetic and the still – moreover, it is expected to function as a buffer or gradiënt between the two. The building thus becomes Janus-faced: defining the local identity of a neighbourhood on one side and embracing the regio-international reality of movement on the other. We consider both realities to be of equal potentiality to establish a site-specific living quality.
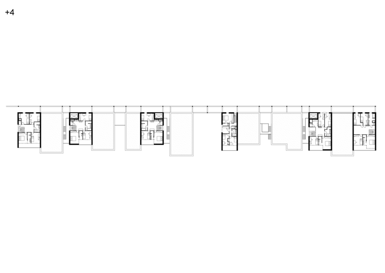
To allow for such an internal scale-jump, we propose a set of architectural interventions to the basic volume set by the masterplan: by cutting and spacing the overall volume and differentiating the park-facade (both horizontally and vertically), the building loses the connotation of a typical unified block of social housing. It rather becomes a set of seemingly autonomous entities that sit well in the residential context.
By duplicating the berm-facade and integrating a semi-subterranean parking pedestal, we optimize the specific contextual benefit of living in one of the stacked houses; the duplicated screen-facade on the side of the train provides an acoustically sound backside which lets in the evening sun, whilst the park pedestal is topped with park-faced terraces and cours anglaises, illuminating the neighbourhood parking with natural light.
The plan itself is developed as a Tetris of different typologies, allowing for a healthy mix of family compositions.
- Jahr
- 2018
- Projektstatus
- Design









