Unternehmensitz Schoeller-Bleckmann in Ternitz
Einfach, präzise, maßgeschneidert – "Es entstand eine moderne Industriearchitektur, die zukunftsweisend auf ihrem Gebiet sein wird." Niederrösterreichischer Baupreis 2014, Preisträger
Raum, Licht, Sauberkeit – Seit über 130 Jahren entwickelt und verarbeitet das niederösterreichische Unternehmen Schoeller-Bleckmann hochqualitative, amagnetische Spezialstähle, heute ist es Marktführer für Hochpräzisionskomponenten in der Erdölindustrie, zum Beispiel für das Bohren nach Ölvorkommen. Die bis zu zehn Meter langen Rohre müssen im hundertstel Millimeter Toleranzbereich von den hochqualifizierten MitarbeiterInnen gefertigt werden. Für ihre Produktion brauchte der Unternehmensitz in Ternitz im Schwarzatal eine neue Halle, die mehr Raum und Licht bietet, eine saubere Fertigung und optimierte Abläufe ermöglicht.
"In der dialoghaften Zusammenarbeit mit den Architekten haben wir eine Halle entwickelt, die uns nun viel mehr ermöglicht, als in unserem ersten, sehr technischen Anforderungsprofil definiert war." Franz Wurzer, Geschäftsführer von Schoeller-Bleckmann Oilfield Technology
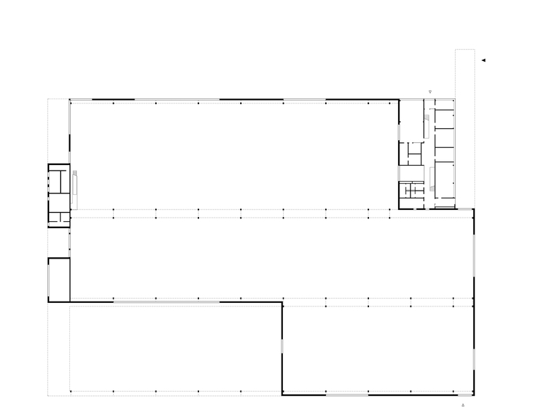
Offen und diskret – Wir verlegten das Gebäude nach vorne zur Zufahrt als Kopf und Bezugspunkt für das dahinterliegende Werkgelände, das dadurch ein Gesicht, ein Wahrzeichen und Anhaltspunkt bekommt. Ein sechs Meter hoher schwarzer Körper und das darunter rundherum laufende Fensterband – mit mehr oder weniger Stahlbetonanteil als Prall- und Anfahrschutz – bilden die zwei Lagen des elf Meter hohen Baus.
Er beherbergt nicht nur die Produktion und den innen liegenden LKW-Verladebereich, sondern auch ein Freilager, Labors, Büros, Sozialräume und im Inneren verborgen einen Fitnessbereich mit einem kleinen Hof.
Industriespionage ist ein großes Thema auf dem hochspezialisierten Markt des Unternehmens. Wir diskutierten mit den Bauherren sehr intensiv, inwieweit wir die sensible Produktion von außen sichtbar machen können.
Ein Dankeschön – Die mächtige Auskragung mit dem Unternehmenslogo zeigt nun selbstbewusst die Werkeinfahrt. Mit der Anordnung des technologisch unsensiblen Versandes zu den öffentlichen Flächen und der high-tech Produktion Richtung Werksgelände konnten wir allseitig helle Räume und Sichtbezüge nach außen bieten und gleichzeitig Unternehmesbereiche mit sensibler Technologie vor Einblicken schützen. Unterirdisch ist die neue Produktion an bestehende Produktionsstraßen angeschlossen.
"Die Produktion für Gäste sichtbar zu machen und trotzdem den notwendigen Schutz vor unbefugten Einblicken zu gewähren, ist in diesem Projekt sehr gut gelungen."
Franz Wurzer, Geschäftsführer von Schoeller-Bleckmann Oilfield Technology
Im Werk arbeiten mehrere hundert hochqualifizierte MitarbeiterInnen im Drei-Schicht-Betrieb fünf Tage die Woche. Die Belegschaft aus der Umgebung ist das Kapital des Unternehmens. Daher hatten wir im Laufe der Projektentwicklung mit dem Bauherren die Idee, auch Räume für einen hauseigenen Fitnessbereich sowie eine großzügige Werksküche zu integrieren.
"Das Gebäude ist somit nicht nur Arbeitsort, sondern verbirgt im Inneren auch ganz konkret für jeden einzelnen unserer MitarbeiterInnen ein kleines Dankeschön."
Franz Wurzer, Geschäftsführer von Schoeller-Bleckmann Oilfield Technology
- Jahr
- 2013
- Projektstatus
- Gebaut
- Bauherrschaft
- Schoeller-Bleckmann OILFIELD Technology GmbH
- Team
- Werner Reifner(PL), Tanja Gombotz (PL), Thomas Karl, Lisa Kose, Barbara Wagner, Carolina Eccli, Vesna Ozegovic
- Statik
- DI Alexander Katzkow & Partner GmbH
- Bauphysik
- DI Alexander Katzkow & Partner GmbH
- Gebäudetechnik
- Zencon GmbH
- Brandschutzplanung
- Norbert Rabl ZT GmbH
- Leitsystem
- Studiozwei - Agentur für Kommunikationsdesign
- Kostenmanagement
- Buchegger 7 Baumanagement GmbH
- ÖBA
- Buchegger 7 Baumanagement GmbH








