AIV Generali, Wohnhausanlage
Wohnhausanlage Nußberggasse 2c Wien.
Ein Projekt wie dieses spaltet das Publikum - damals wie heute.
1966 hatte der verstorbene Ernst Hiesmayr (1920-2006)
- ein Pionier der konstruktiven Nachkriegs-Moderne Österreichs
in eine schöne Hanglage zwischen den Weingärten am
Wiener Stadtrand eine Gruppe dreier eleganter, relativ flacher
Sichtbetonkuben mit corbusianischen Bandfenstern und relativ
offenen Grundrissen gestellt. Subtil nach den Höhenlinien
abgetreppt, bot sie als "Apartmentsiedlung Clima Villen Hotel" neben der ästhetischen auch eine typologische Innovation. Außer den temporär vermieteten Suiten und Wohnungen richtete sich auch der Architekt selbst hier ein, der Standard mit Wellness-Bereich (damals hieß das noch Hallenbad) war für diese Zeit beachtlich.
Der Kontrast zur üblichen kitschigen Villenarchitektur dieser
noblen Wohngegend konnte kaum größer sein, die Anlage war
ein Manifest der Modernität, sogar einer "echten": Denn Autoren
wie Friedrich Achleitner unterschieden in zeitgenössischen
Berichten noch zwischen einer Pseudo-Moderne, die nur so tut,
als ob, und einer tatsächlichen - die Kriterien dieser Unterscheidung sind heute nicht mehr so leicht nachvollziehbar. Einmal in den Kanon exemplarischer Werke aufgenommen, ist jedoch die Neunutzung nach einem glücklosen Zwischenbesitzer nicht leichter geworden. Der aktuelle Eigentümer, ein architektonisch sehr ambitioniertes Immobilienunternehmen der Generali Versicherung, entschied sich für den Weg der Vermehrung nutzbarer Flächen unter Beibehaltung der "Fußabdrücke" der drei Baukörper - im Klartext bedeutete das einen sehr weitgehenden Umbau des Bestandes sowie Aufstockung bis zum
Limit der hier erlaubten Bauklasse.
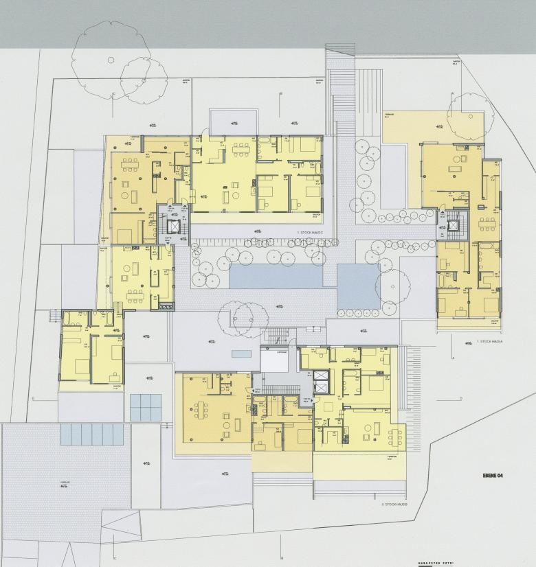
Die Aufgabe war schwierig, immerhin galt es mit begrenztem Aufwand 22 getrennt vermiet- und verwaltbare Luxuswohnungen zwischen 150 und 250 m² in und um einen Bestandskern zu planen, ohne dessen Umrisse wesentlich zu verändern. So konnte man nur in der Höhenentwicklung ansetzen und mit der Aufstockung den geforderten Raum gewinnen - Petri deklariert das aber klar mittels Gesimskanten im Außenputz, welche die alte Trauflinie markieren. Die abwechslungsreich und jeweils unverwechselbar geschnittenen Wohnungen wurden als Maisonetten, in einer Ebene und als Split Level Typen angelegt. Dominierendes Prinzip war dabei eine Art Loftcharakter, der nicht nur dem originalen Baugedanken, sondern auch der aktuellen Vorstellung von fließenden Räumen entspricht. Halboffene ``Raum in Raum`` - Einheiten, offene Kamine, großzügige Verglasungen und Öffnungen auf Terrassen oder private Gärtenflächen sind die Merkmale dieses entspannten Wohnens auf hohem Niveau.
Dazu gehören auch die Erschließung, die per Auto in eine neue Tiefgarage, Kollektorgänge zwischen den 3 Häusern und Liften erfolgt. – oder per pedes durch eine tiefe Lobby aus dem Altbestand, die mittels Lichtschacht aufgehellt wurde.
Im Untergeschoß bietet sich im renovierten Hallenbad samt Saunabad ein markantes Erlebnis unbekümmerter 1960er Ästhetik. Bunte Fliesen in ondulierend –floralem Dekor treffen damals wie heute den Zeitgeist perfekt – sie mussten nur eine wenig renoviert und mit Installationen in heutige Hygienestandards ergänzt werden. Tief unten gibt es – für diverse Eventnutzungen – auch noch alte Bierkeller von einer ehemals ansässigen Brauerei. Ein eigener Weinkeller für jede Wohnung und ein Freibad unter alten Linden im rückseitigen Hangbereich der Anlage komplettieren die Ausstattung.
Dr. Matthias Boeckl für Architektur Aktuell
- Jahr
- 2006
- Projektstatus
- Gebaut
- Bauherrschaft
- Generali























