UPM Group Headquarters
The predecessor of the new headquarters was built a hundred years ago at the corner of Eteläranta and Esplanadi streets, the best place at the time. The landowners of the Töölönlahti district, the city of Helsinki and the Finnish state, offered today’s best sites especially to internationally successful Finnish companies. UPM seized the opportunity and organised the first international invited design competition concerning a row of new office buildings At that point, the city plan had to be followed precisely.
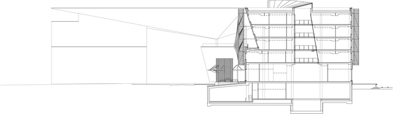
The unique context of the new building in Töölönlahti comprises monuments of various periods: the National Museum, Helsinki Railway Station, the Parliament House and its annex, Finlandia Hall, Kiasma. When the Biofore House was designed, there was no knowledge of the nearest to-be neighbours.
The client’s objective was top-quality architecture in terms of both functionality and aesthetics, yet within reasonable costs. The detailed plan did not enable using wood to the maximum, so the building is a combination of plan provisions and wooden surfaces. The formal motifs of the exterior are abstracted references to wood: the Bioforum Gallery is a piece of stump and the bridge crossing Alvar Aallon katu street a bevelled polyhedron. Both are clad with timber. Ecology and advanced energy saving prompted the helical sunshades made of refined steel mesh, the material of the machine clothing used in paper processing. The floors of outdoor terraces are made of UPM ProFi boards.
An essential element in the facade system is 60-mm thick UPM plywood, the system forming the structure of the exposed wooden window frames. The interiors abound in components of mechanical wood processing. Visitor meeting rooms and the corridor zones of office floors have curved ceilings made of ash-veneered UPM Grada boards. The walls of the visitor meeting rooms are clad with sound-absorbing Wisa-Phon panels with veneer finish.
The main interior element, essential in creating the identity of the building, is its free-form atrium. The conference cluster of the entrance floor winds around the atrium; the visitors are received in a well-lit cafe placed in the high space. The Lusintesis light installation was designed in collaboration with Tapio Rosenius/LCD. Adjacent to the entrance is a projecting conical structure, the Bioforum Gallery, which is a high space for product and art exhibitions as well as diverse small events.
The offices, designed for 450 employees, are all open spaces, including those of the management. What is new are the unusual teamwork and brainstorming spaces. The lifts of the office floors open to a light, multiform shared space, which enables informal encounters as well as the performance of team and individual tasks. The teamwork spaces, phone booths and meeting rooms of the office floors provide alternative work areas for the varied situations of the working day. The characteristics of the site are utilised by means of several west-facing terraces.
1st prize in international invited competition
2015 Architizer A+ Award, special mention, Office Buildings 5-15 floors
2016 Best for Office Design Finland – BUILD News
2016 Best Finnish Cutting-Edge Corporate project – BUILD News
LEED Platinum 2018 certified
- Jahr
- 2013
- Projektstatus
- Gebaut
- Bauherrschaft
- UPM-Kymmene Corporation
- Team
- Helin & Co Architects, Pekka Helin










