Villa Ladybird
In Beddingestrand, between Ystad and Trelleborg, on the south coast of Scania, the cottages are lined next to each other. The area is characterized by the sea, the sand, the grass and the trees. Winters are cold with powerful winds. In summer the water is still cool, but the air is scorching hot.
The building functions as a seasonal dwelling, and in the future perhaps a permanent house for a small family. The call for simplicity in a summer house is combined with the technical and functional demands of a permanent living space.
The house is placed on the older elevated shore line that acts as a shelf with a view over the ocean and the nature. The difference in elevation creates a certain vista and shelters the house from rising water levels. At the same time the building is inferior to the forest that grows along the coast. In winter the contact with the sea and the elements is stronger because of less vegetation.
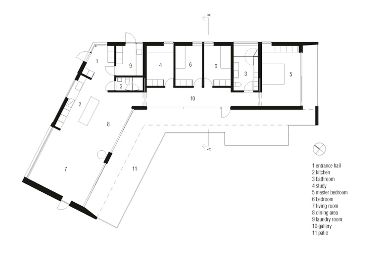
Two narrow wings in an open angle create views and the same time just enough protection from neighbors and winter winds. The inside of the open atrium form of the house is glazed with sliding
aluminum doors. These parts of the facade has a protruding roof, tapered for slimmer lines and reduced visibility from the interor.
The facade is clad with custom profile Siberian larch with metal detailing in anthracite zinc. The foundation is a concrete slab with an outer wall made from light clinker. The structure is based on a wooden frame reinforced by steel over the larger openings. The roof is constructed with trapezoid metal plating covered with insulation boards, eliminating the need for a ventilated construction that would be vulnerable to saltwater air. The aluminum glazing is treated to withstand these corrosive winds, as are the walls which have extra layers of protection beneath the wood.
- Jahr
- 2010
- Projektstatus
- Gebaut









