Leblon Offices
Richard Meier & Partners celebrates the completion of its first project in South America. The new Leblon Offices is a seven-story, sustainable structure incorporating generous natural light, and a unique composition of concrete, glass, and innovative vertical gardens.
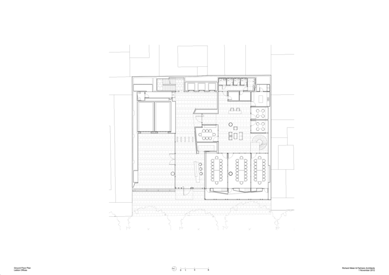
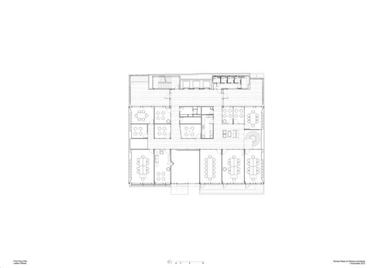
The state-of-the-art commercial office building in the Leblon neighborhood of Rio de Janeiro houses the new international headquarters of VINCI Partners, one of Brazil’s leading alternative investment and asset management firms. The structure consists primarily of private interior courtyards, open office spaces and a series of terraces that create a direct connection with the urban artery of Bartolomeu Mitre Avenue.
The building consists of seven floors above ground for a total height of 25 meters with a leasable floor area of 6,500 m2. A spacious lobby anchors the building to the streetscape, and three subterranean floors provide additional leasable space and private parking.
The office tower’s design, with its refined, formal vocabulary, reflects the distinct orientation of the site while addressing issues of sustainability, maximum efficiency, and flexibility. The entire building is recessed from the urban frontage and shielded by a carefully composed set of louvers along the western elevation designed for both maximum sun shading and privacy.
The eastern section of the building is spaced apart from its neighbors to create internal courtyards and provide natural lighting on two exposures for all office spaces. Generous vertical gardens tie these open-air atriums into the exposed concrete core of the building. The entire project straddles between the refined precision of a white aluminum-and-glass free-plan office, and the roughness of concrete and the vegetation within the courtyards.
The firm’s design role was to bring to life a vision for a successful, high-end office space with a project that aspires to become a significant architectural contribution to Rio de Janeiro, respecting Brazil’s rich architectural heritage while simultaneously challenging preconceived notions of indoor and outdoor spaces, and the relationship between the building and the city of Rio de Janeiro. Richard Meier & Partners has designed seven buildings in Latin America, including the Reforma Towers in Mexico City, Mexico and the Vitrvm development in Bogota, Colombia both currently under construction.
- Jahr
- 2016
- Projektstatus
- Gebaut















