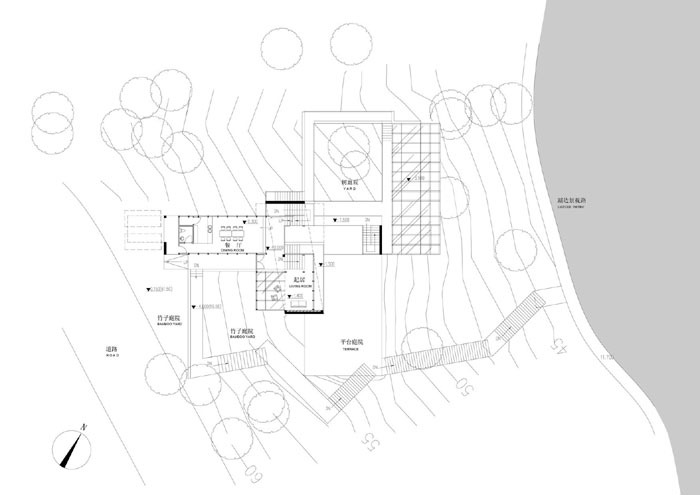
A Folded House - An Artist Studio, Nanjing


Project description

Architect: Doreen Heng LIU
Project Team: Jie-Bin HUANG, Dai Pu, Shao-Li LIN
Structure and Material: concrete & Steel structure
Site area: 3125sqm

A narrow and long piece of paper rolls, folds up and is becoming a house. 

Jahr
2008
Projektstatus
Gebaut

Andere Projekte von NODE (Nansha Original DEsign) 

Renovation of Yantian Dameisha Village, House 10
Shenzhen, China
Urban kitchen
China
Nansha Science Museum
Nansha, Guangzhou, China
Guangdong Art Museum - Times
Guangzhou, China
NODE Shenzhen Office
Shenzhen, China