Pingshan Performing Arts Center
In tandem with China’s economic boom and rapid urbanization, theaters have sprung up throughout the country in the past decade. Most have extravagant exteriors, but are often spatially monotonous and far detached from the general public and everyday urban life, greatly underutilizing the tremendous public resources invested in them. After winning a competition to design the first theater in Pingshan, a new district in the municipality of Shenzhen, OPEN had the opportunity to take a critical look at the past development of theaters in China, and to explore new possibilities for the future.
With tremendous support from the client, we ‘re-designed’ the original program which only called for a grand theater — performing-arts-related educational and social programs were added, as well as a restaurant and a café. A public promenade and a series of gardens accessible to all were designed to be interwoven with the architecture. In breaking away from the mono-function Cultural Landmark typology, the building not only becomes much more sustainable in daily operation, but also sets a new example of social inclusivity for civic buildings. Serving as a new cultural hub, it also provides the non-theater-going public with an exceptional and unusual urban space.
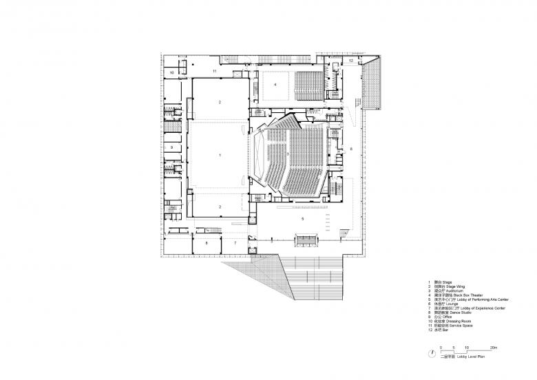
Despite many examples to the contrary, we do not believe a theater building necessarily requires a “dramatic” form. “Drama Box” was intentionally designed to be cubical in form and rich in spatial experiences. At its heart is the volume of a 1,200-seat grand theater which is entirely wrapped in dark-red-toned wood panels, visible both from inside the building and on the roof — the fly gallery penetrates the roof and manifested itself as the backdrop for the roof garden.
Flanking the grand theater is a variety of smaller functional spaces accessible both by a separate circulation system inside the building and through an outdoor meandering public promenade — so they can be conveniently used by the general public even when the grand theater is closed. Blurring the boundary of the building and city, the promenade links together a café, a black box theater, teaching spaces, rehearsal rooms, informal outdoor theater, and outdoor gardens on different levels. This interweaving of architecture and nature gradually reveals surprises and colors to visitors who stroll the promenade’s length from the ground floor plaza to the roof garden.
As a result, the performing arts center brings together a series of seemingly opposite elements: the formal and the informal, the elite and the mass, the traditional and the experimental; resulting in rich and exciting experiences both spatially and functionally.
Within and around this porous “drama box”, the introduction of a variety of vegetation in outdoor gardens on different levels of the building creates a comfortable environment for people. The planted roof also greatly reduces the heat load of the building. The façade is a direct response to the local climate, with the outer skin made of precision-engineered perforated aluminum V sections, both protecting the building from sub-tropical sun exposure and enhances natural ventilation. Lots of efforts put into the design to help this performing arts center break away from the conventional notion of theater as high energy consuming building typology.
- Jahr
- 2019
- Projektstatus
- Gebaut
- Bauherrschaft
- The Government of Shenzhen Pingshan District
- Team
- Zhang Hanyang, Xing Shu, Andrea Antonucci, Sun Xinying, Zhang Chang, Jia Han, Sabrina Wu, Zhang Hao, Cynthia Yurou Cui, Angela Nodari, Li Hu (Principal in Charge), Huang Wenjing (Principal in Charge), Ye Qing (Project Architect), Zhou Tingting (Project Architect), Han Ruyi, Luo Ren
- Local Design Institute
- Shenzhen Aube Engineering Design Consultant Co., Ltd
- Curtain Wall Consultant
- Schmidlin Façade Consultancy
- Theater Consultant
- JH Theatre Architecture Design Consulting Company
- Stage Equipment Consultant
- Zhejiang Dafeng Architecture and Decoration Co., Ltd
- Lighting Consultant
- United Artists Lighting Design Consultants




















