Flughafen Frankfurt
Frankfurt am Main, Deutschland
Dem Himmel entgegen
Transparent und lichtdurchflutet präsentiert sich der Flugsteig A-Plus am Frankfurter Flughafen. Konstruiert wurde der Anbau vom Hamburger Architektenbüro gmp (von Gerkan, Marg und Partner): Die Planer setzten dabei auf eine nahezu komplette Fensterfront nach Süden zum Rollfeld hin und überspannten die Rotunde im Geschäftsbereich mit einer Glaskuppel. Sogar die Bereiche, in denen Rolltreppen die einzelnen Ebenen verbinden, geben einen Vorgeschmack auf den Himmel. Sie haben ebenfalls transparente, leicht gewölbte Glasdächer.
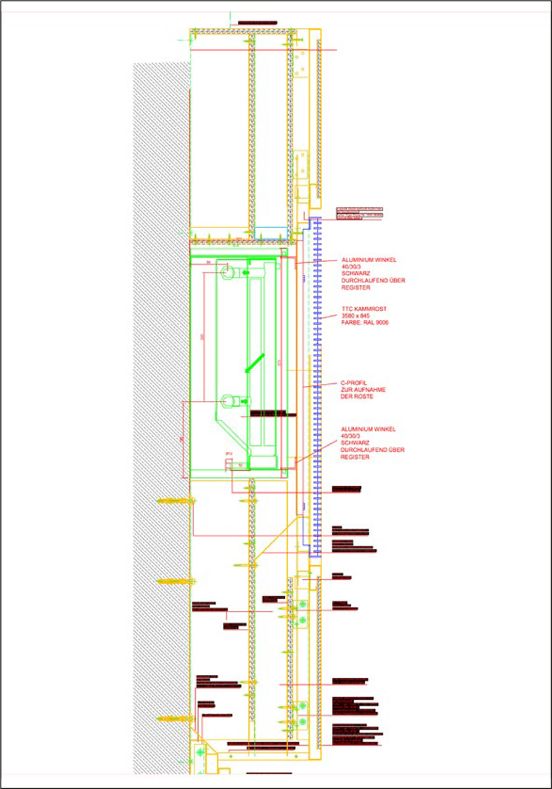
Um in diesen Gebäudeteilen ein angenehmes Raumklima für die Reisenden aus aller Welt zu schaffen, bedarf es intelligenter Heiz- und Klimatechnik. Denn ein Glasdach bedeutet im Sommer Sonneneinstrahlung und damit erhöhte Temperaturen. Im Winter dagegen kann der Zugang zum Rolltreppenbereich auskühlen. Angesichts einer zusätzlichen Kapazität von sechs Millionen Passagieren pro Jahr bedeutet das eine enorme Herausforderung an die Klimatechnik. TTC Timmler Technology als Spezialist für modernste, energieeffiziente Systeme hat eine innovative Lösung beigesteuert, die vom Konzept dem hochwertigen Innendesign entspricht: Unsichtbar für das Auge des Betrachters befinden sich hinter der Wandverkleidung jeweils 28 Heiz- und Kühlschächte.
Insbesondere die Schwerkraftkühlung ist sehr energiesparend, weil warme Luft, die nach oben steigt, über dezente Öffnungen angesogen und dann mit Wasser gekühlt wird. Durch Roste am Fuß der Wand tritt sie als erfrischendes Lüftchen wieder in den Raum. Dieses Verfahren hat viele Vorteile: Das wassergeführte System GraviVent verursacht wesentlich niedrigere Kosten als herkömmliche Anwendungen. Es arbeitet geräuschlos und die impulsarme Quelllüftung ist sehr unauffällig. Während der kalten Jahreszeit wiederum garantieren die Heizkonvektoren für eine angenehme Atmosphäre, dann verströmt behagliche Luft. Die Klimatisierung erfolgt sanft und gleichmäßig – sowohl kühle als auch warme Luftströme verteilen sich unmerklich.
Die Abdeckungen am oberen Teil der Wandverkleidung sowie im Boden stammen ebenso von TTC Timmler Technology. In enger Abstimmung mit dem Trockenbauer und der Fachfirma für Deckenund Wandsysteme wurde die Unterkonstruktion für die Roste gefertigt und die Länge der Kammroste auf die Abmessungen der Paneele angepasst. So sitzt Fuge auf Fuge, im Ergebnis sind auf diese Weise homogene Flächen entstanden.
GraviVent® | Technische Daten
GraviVent Kühlunits Typ ASIS 51.21.2
→ Leistung: Hochleistungskapazität Kategorie 2 mit Kondensatwanne und Drainagerohr Vorderseite pulverbeschichtet schwarz
→ 30 Stück 1.800mm
→ 5 Stück 2.400mm
Heizkonvektoren Typ HK 2.075.200
→ aus Kupferrohr mit Aluminiumlamellen
→ 22 Stück 1.800mm
→ 5 Stück 2.400mm
Lufteinlass oben
Linearroste Typ KST 18.03.77 AP
→ aus Aluminium, 10mm Stababstand, Gesamthöhe 45mm, pulverbeschichtet nach RAL 9006
→ 22 Stück 3.600 x 845mm [L x B]
→ 4 Stück maßangefertigte Passtücke
→ 6 Stück 2.700 x 845mm [L x B]
Luftauslass unten
Linearroste Typ KST 18.03.77 AP
→ aus Aluminium, 10mm Stababstand, Gesamthöhe 45mm, pulverbeschichtet nach RAL 9006
→ 22 Stück 3.600 x 270mm [L x B]
→ 4 Stück maßangefertigte Passtücke
→ 6 Stück 2.700 x 270mm [L x B]
- Hersteller
- TTC Timmler Technology GmbH
- Projektstatus
- Design
- Architekten
- gmp · Architekten von Gerkan, Marg und Partner, Hamburg








