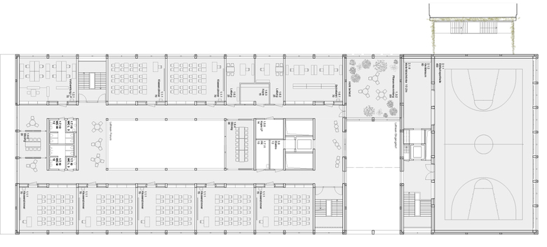
Baugewerbliche Berufsschule

Limmatstrasse, Zürich, Schweiz
Architekten
Leuppi & Schafroth Architekten
Jahr
2018
Projektstatus
Design
Team
NOA Landschaftsarchitektur

Dazugehörige Projekte 

  • Moos
    playze
  • Reiters Reserve Premium Suiten
    BEHF Architects
  • Erweiterung und Instandsetzung Hallenbad Altstetten
    MIYO Visualisierung
  • Neubau von fünf Einfamilienhäusern
    Bäumlin+John AG
  • The Forge in der 105 Sumner Street in London
    Kiefer Klimatechnik GmbH

Magazin 

Andere Projekte von Leuppi & Schafroth Architekten 

Neubau Rütiwiesweg
Zürich, Schweiz
Villa Thuja
Boppelsen, Schweiz
Erweiterung Volksschule Stapfenacker
Bern, Schweiz
Fussgänger und Fahrrad Brücke
Kiew, Ukraine
Neubau Betreuungsgebäude Aemtler
Zürich-Wiedikon, Schweiz