Bing Chang Tian New Bund Kindergarten

Qingxue Road and Chuntiao Road, Lot 55, Qiantan Area, Pudong, , Shanghai, China
External View of the Kindergarten

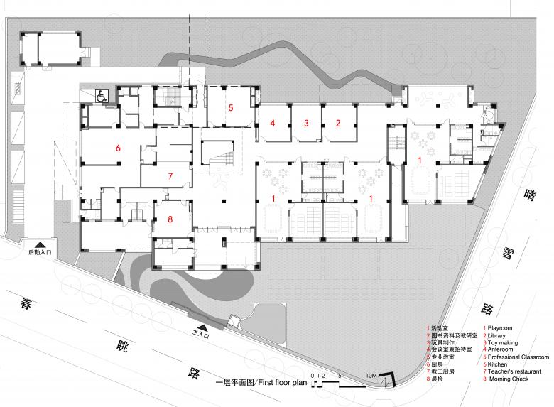
Kindergarten Department is going to be operated independently. At the western end of the second and third floors, the department combines the multi-function hall and the office area into a cantilevered volume with a double-decked high balcony, continuing the public interface toward the playground and the community. In response to the set-back in the south, the Kindergarten Department organizes an indoor space around a small atrium with a pleasant scale. An open staircase circling in the atrium connects the floors together and expands to a small indoor open theater on the ground floor.

Overall Aerial View
Foto © 陈颢
External View of the Kindergarten
Foto © CreatAR
Terrace in the Kindergarten
Foto © CreatAR
Terrace in the Kindergarten
Foto © CreatAR
Atrium of the Kindergarten
Foto © CreatAR
Interior Space of the Kindergarten
Foto © CreatAR
Interior Space of the Kindergarten
Foto © CreatAR
First Floor Plan of the Kindergarten Department
Zeichnung © Dplus Studio/ Atelier Z+
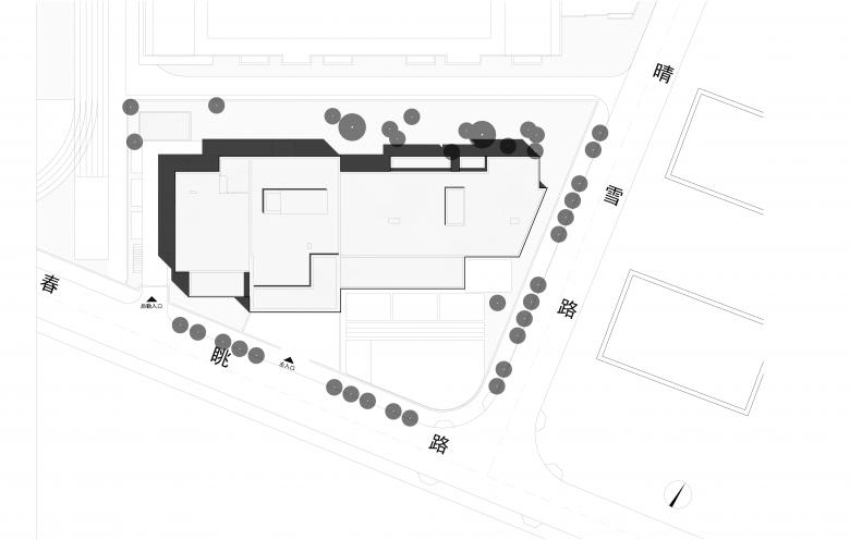
Site Plan of the Kindergarten Department
Zeichnung © Dplus Studio/ Atelier Z+
Perspective Sections
Zeichnung © Dplus Studio/ Atelier Z+
Details of the Walls
© Dplus Studio/ Atelier Z+
Architekten
DPLUS STUDIO
Jahr
2018
Projektstatus
Gebaut

Dazugehörige Projekte 

  • Gymnasium Schulstraße
    Kronaus Mitterer Architekten
  • GROHE Water Experience Center
    D’art Design Gruppe GmbH
  • Limmatquai 4
    Kästli Storen
  • Volksschule Erlaaer Schleife
    Kronaus Mitterer Architekten
  • Ortsdurchfahrt Domat/Ems
    Luminum GmbH

Magazin 

Andere Projekte von DPLUS STUDIO 

Experimental Primary School of Suzhou Science and Technology Town
Suzhou, China
Nanchang Shimao Water City Cloud Office Center
Nangchang, China
“Cross the Street and Embed Gardens" -- AI Future Community
Shanghai, China
The New Bund School of No.2 Secondary School of East China Normal University
China