Bundesgymnasium und Bundesrealgymnasium

Ehrenbrunngasse 6-7, Schwechat, Österreich
© Paul Ott

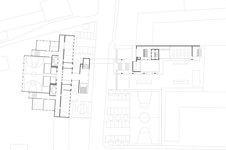
Das bestehende Schulgebäude des Bundesgymnasiums und Bundesrealgymnasiums wird um eine Zweifachsporthalle, Bibliothek, Speisesaal und 16 Unterrichtsräume erweitert. Durch die beengte Grundstückssituation wird die Sporthalle unter Terrain angeordnet und der Erweiterungsbau an die nordöstliche Grundstücksgrenze platziert. Das Gebäudekonzept des Neubaus auf zwei versetzten „Schienen“ reagiert zum einen auf die nachbarschaftlichen Belange und definiert zum anderen Eingangsplatz, Freiflächen für Speisesaal und Bibliothek sowie Sportfreiflächen. Darüber hinaus entwickelt sich aus der Gebäudestruktur der Brückenschlag über die Ehrenbrunngasse zum neu gestalteten Eingangsbauwerk, welches durch eine verglaste Fuge vom Bestand abgelöst ist und diesen so in seiner ursprünglichen Struktur belässt. Aufwändige Maßnahmen im Bestand werden vermieden, da das Gebäude strukturell leistungsfähig und anpassbar ist.

Durch die geänderte Zugangssituation wird das Erdgeschoss als Entrée aufgewertet und durch die Anordnung der Schulwartloge sinnvoll ergänzt. Der zentrale Luftraum zwischen 1.OG und Dach bleibt erhalten und wird durch ein neues Lichtdach aufgewertet. Durch die Addition der Galerie der Sporthalle zur zentralen Pausenfläche im 1.OG wird diese Zone für einen reibungsloseren Buffetablauf vergrößert. Mittels einer großzügigen Verglasung zur Sporthalle wird dieser innenliegende Bereich heller und attraktiver. Durch Umwidmungen werden bestandsschonend sinnvolle Funktionsbereiche gebildet, so dass im Erweiterungsbau lediglich allgemeine Unterrichtsbereiche, die Bibliothek und der Speisesaal für das Tages-schulheim, sowie die Sporthalle zu organisieren sind. Sinnfällig wird der allgemeine Unterrichtsbereich mit weitgehend nach Südwest orientierten Klassenräumen im 1. und 2. OG angeordnet, die Bibliothek und der Speisesaal im Erdgeschoss mit attraktiven Freiraumbezügen für die Pausennutzungen.

Mit reduzierter Fassadengestaltung fügt sich der Neubau zurückhaltend in den städtebaulichen Kontext ein. Eloxierte Streckmetall-Lamellen leisten witterungsunabhängigen Sonnenschutz. Die Maschenweite des Streckmetalls ist auf eine optimale Reduzierung der direkten Sonneneinstrahlung abgestimmt und soll dabei weitgehend ungehinderte Sicht nach außen bieten. Durch effektiven Sonnenschutz werden die Wärmelasten im Gebäude reduziert. Die dahinter liegende Stahlbetonkonstruktion als zweigeschossiges Vierendeeltragwerk ermöglicht das Überspannen der Turnhallen im UG.

Die Klassenräume werden natürlich belüftet. Das Fußbodenheizsystems wird im Sommer zur Teilabkühlung genutzt. Baffeln sorgen für eine gute Akustik.

Die kompakte Bauform trägt zur Nachhaltigkeit und Wirtschaftlichkeit bei.

Aufgabe
Erweiterung, energetische und funktionelle Sanierung des historischen Gebäudes, Errichtung einer Zweifachsporthalle, Gestaltung von Eingangsplatz und Freiflächen

Bauherr
Bundesimmobiliengesellschaft BIG

Leistungsumfang
HOA 1-9 Österreich
Generalplaner, baukünstlerische, technische und geschäftliche Oberbauleitung
Erstellung Brandschutzkonzept

Kenndaten
NF Erweiterung 2.770 m²

Ausführungszeit
Wettbewerb 1. Preis 01l2008
Planungsbeginn 02l2008
Ausführung 05l2011 - 12l2012

© Paul Ott
© Paul Ott
© Paul Ott
© Paul Ott
© Paul Ott
© Paul Ott
© Paul Ott
© Paul Ott
© Paul Ott
© Paul Ott
Architekten
Schwinde Architekten
Jahr
2012
Projektstatus
Gebaut

Dazugehörige Projekte 

  • Moos
    playze
  • Reiters Reserve Premium Suiten
    BEHF Architects
  • Erweiterung und Instandsetzung Hallenbad Altstetten
    MIYO Visualisierung
  • Neubau von fünf Einfamilienhäusern
    Bäumlin+John AG
  • The Forge in der 105 Sumner Street in London
    Kiefer Klimatechnik GmbH

Magazin 

Andere Projekte von Schwinde Architekten 

Kammerhauptverwaltung und Lehrsaalgebäude Handwerkskammer
Regensburg, Deutschland
Erweiterung Europäische Schule München
München, Deutschland
Umbau und Sanierung Schulzentrum HTL | HBLA
Saalfelden, Österreich
Erweiterung Landratsamt Garmisch-Partenkirchen
Garmisch-Partenkirchen, Deutschland
Rathauserweiterung
Moosburg a.d. Isar, Deutschland