CHOPIN INTERNATIONAL MUSIC CENTRE IN ZELAZOWA WOLA
Polen
フレデリック・ショパン生誕地の国際音楽センターは、フレデリック・ショパン研究所の活動を拡大・強化し、ジェラゾヴァ・ヴォラにあるチームを芸術・教育活動の盛んな中心地にすることを目的としています。そのためには、その場所の精神に焦点を当てた建築が必要であり、その場所と不可分の関係にあり、周囲の環境や、作曲家の記念碑と生誕地である魅力的な公園の影響を尊重する必要があります。これらすべての要素を調和させなければなりません。
設計提案したプロジェクトは、フリデリク・ショパンの生家に対峙し、彼の貴重な音楽的・思想的遺産の生き生きとした精神を捉え、テクトニクスによってそれを現代の建築言語に変換しています。
公園に面した北側のファサードを多層構造のガラスのギャラリーにすることで、周囲の風景を自由に見渡すことができ、また公園側からコンサートホールの形を見せることができます。このファサードの彫刻的な幾何学形状は、ガラス、柱、壁の変動により、小さな断片に分割され、全体のスケールを縮小し、軽快さを増すと同時に、ダイナミクスを与えています。
建物の各階からは無限に広がる公園の景色を眺めることができ、計画された道や地形の要素は建物へとつながり、地下の入り口は常に内部へと誘っています。壁や天井に設けられた多くの開口部とガラスのおかげで、内部にも一種のランドスケープが作られています。景色や見る人に向かって開かれ、魅力的で興味深く、親しみやすい建築を形成しています。切れ目のない空間の対話が生まれます。
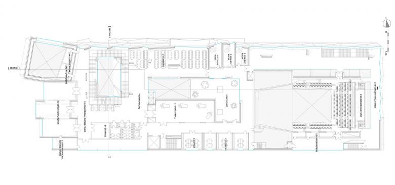
ショパン国際音楽センターの建物の中には、ゲストのための2つの主要なコミュニケーションルートがあります。ひとつは、東西軸のエントランスゾーンからコンサートホールのホワイエにつながるもので、もうひとつは、内部を囲む彫刻の形をした階段を持つメインの中庭で、すべての階を通って屋上テラスにつながるものです。
明確なコミュニケーションシステムとゾーン(コンサート、練習、教育、会議)により、使い勝手の良い建物となっています。
コンサートホールのインテリアは、最高の音響基準に加えて、聴衆と演奏者の間に親近感を与えなければなりません。音楽との一体感を感じさせるものでなければなりません。
音と空間の対話
デザインされたオブジェクトは、フレデリック・ショパンの生誕地と向き合い、彼の貴重な音楽的・思想的遺産の生き生きとした精神を捉え、テクトニクスによってそれを現代の建築言語に変換しています。音楽は、時間や空間、そして同時に空虚さを表現することができ、メロディーやペースを常に変化させることで内面的な努力を強いることができる。建築は、空間の一連のシフトから、支持体の調和から、可変のフォームと形状で構成されています。建築は構造の音楽である。音楽は、刻々と変化する幾何学的な形状とともに、空間に反響します。
譜面によるインスピレーション
音は紙の上で音符として表現されます。頭と尻尾を使い、五線譜によって制限されます。建築も同様に、2本以上の線の間に定義されます。
私たちのプロジェクトでは、楽譜の幾何学性を利用し、スケールを変え、移動させ、それによって建物のさまざまなレベルを作り出しています。コンセプトはルバートの概念を参考にしていますが、そこからどのような形を踏襲するのか、一義的な解釈を押し付けようとはしていません。音楽のように、すべての受け手にさまざまな感情や感動を呼び起こす建築を作ることが前提となっています
コンサートホール
コンサートホールは、音響コンサルトとの協働で設計されています。コンサートだけでなく、簡単なオペラの上演も可能です。残響エネルギーに富んだ最も均一な音場を提供するために、サイドパネルとバックバルコニーを備えた「シューボックス」タイプの部屋を提供しています。このソリューションのさらなる利点は、アーティストと観客の距離が近いことです。台形の音響パネルの塊は、オブジェクト全体の建築言語を苦しめ、音楽のためだけの空間を作り出します。機能的には、音場を均一に分布させる役割を果たしますが、部屋の形態や芸術的表現にも影響を与えます。
コンサートホールとホワイエ
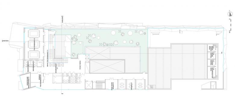
コンセプトは、東西軸に沿ってメインエントランスを開くことで、オブジェクトと環境の明確なつながりを想定しています。この軸は、東側のエントランスゾーンとメインコート、そしてコンサートホールのホワイエを結んでいます。ホワイエからは大きな面積のガラス窓があり、公園を遮るものなく見渡すことができるため、すべての階でゲストを自然と常に触れ合わせることができるようになっています。ホワイエ、カフェ、MCM前の広場をつなぐことで、内と外を自由に行き来できるようになっています。各階を貫通してつなぐ広角の形をしたホワイエは、自分の居場所を求めて移動することを促し、私たちを感動させるような景色のある場所を提供します。アーティストのための多機能スペースは、近接して配置された「音楽」の部屋(リハーサルルーム、ドレッシングルーム、チェンバールーム、コンサートルーム)が明快につながり、容易にコミュニケーションが取れるようになっています。楽器庫や衣装箱は、ゲストが立ち入れないゾーンに設置しました。また、大規模なイベントの際には、エクササイズルームを追加のワードローブとして使用することもできます。
人と音楽
目指したのは、機能的な要求を満たしつつ、明確で読みやすいユーザーインターフェースを持つオープンプランを作ることでした。
機能的な要求を満たしつつ、ゾーニングすることです。しかし、機能がすべてではありません。そのために、プロジェクトではさまざまな開口部、視覚的なつながり、目立たない形を取り入れました。コンセプトは、東西軸に沿って主要なエントリーを開くことで、対象物と環境との明確なつながりを想定しています。この軸は、東側のエントランスゾーンとメインコート、そしてコンサートホールのホワイエを結んでいます。ホワイエからは、大きな面積のガラスが公園の視界を遮ることなく伸びているため、ゲストはすべての階で常に自然と接していることになります。
メインの中庭は、外部と内部の機能を兼ね備えており、ゲストを以下のように導いています。
メインの中庭は、外部と内部の機能を兼ね備えており、ゲストは個々のアクティビティやテラスを経て、公園へと導かれます。建物内の垂直方向のパーティションは、部分的にオープンになっています。そのため、内部にもランドスケープが形成されており、北側の側面からガラス越しにアクセスすることで、公園とシームレスにつながっています。
内部からは、公園のパノラマビューが見えます。フレデリック・ショパンを記念したモニュメントと、このユニークな場所の「天才的な軌跡」が融合しています。
コンクリートとガラスで構成された幾何学的なフォルムは、壁と柱で構成された空間で振動し、台形の立体によってそのユニークさがさらに強調されています。
練習室
教室のエリアは、活動と関心の中心となりました。ガラス張りの開放的な空間で、センターの日常的な音楽活動を紹介しています。誰もが自発的な演奏に参加するチャンスがあります。
建物の1階は、ユーザーのさまざまなニーズを満たす「音楽のためのレベル」として設計されました。1階にあるすべての音楽室(リハーサル室、ドレッシングルーム、チェンバールーム、コンサートルーム)を近接して配置することで、それぞれの機能を明確に組み合わせ、コミュニケーションを取りやすくしています。また、特に完璧なオーガナイズが必要な大規模イベントの際には、このレイアウトにより、時間、スペース、ユーザーの管理を効率的に行うことができます。エクササイズルームは、お客様の好みに応じて、閲覧可能な状態にしたり、許可なくアクセスできないようにしたりすることができます。
既存と新規の対話
国際音楽センターの設立は、フリデリック・ショパンの生家の近くにある公園のすぐ近くに設けられます。これは、Prof. Krzywdy - Polkegoowskiのプロジェクトの継続として設計されました。Krzywdy - Polkowskiegoと建築家Bolesław Stelmach。その目的は、新しいオブジェクトとその周辺に入ることを意識し、それらが作曲家を称えるモニュメントの一部になるようにすることでした。この建物は、その立方体にもかかわらず、既存の要素との関係で補完的な役割を担うことになっています。さらに、この場所の牧歌的で自然な特徴を尊重するために、貴重な樹木をすべて保存することが計画されています。その他の植栽の密度は、ショパンの生家の近くにある公園の植栽の密度に合わせて、綿密に選定します。南北軸の延長線上にあるランドスケープ(公園)を通して、既存のものと新しいものとの対話が生まれます。空間関係や景観の連続性、活動やイベントの連続性が確保されています。同じ南北軸上には、外部の広場として機能する円形劇場のレイアウトの中で、小道、階段、低いテラスが見事に統合されています。既存の公園との象徴的・物理的なつながりがあるにもかかわらず、MCMは完全に独立して機能することができます。公道側からの快適で明快な開口部は、対象物への魅力的なアクセスとなっている。この空間に組み込まれた街路樹は、この場所の元々の特徴を維持し、西側と北側のファサードを縁取ることで、視覚的にオブジェクトのスケールを小さくしています。
大前提として、MCMの内部を周囲の環境や、より大きなスケールであるKriswda - Polkowskiego公園とリンクさせ、ゲストには前提全体への自由なアクセスを提供し、投資家には対象物の仕事と生活の構成における完全な自由を提供することにありました。様々な建築要素と景観が、MCMの活動に関連する様々なタイプの活動に理想的な空間を作り出しています。
構造
これは、「ショパン・ハウス」の前にある美しい公園の中に建つミュージック・センターの計画であり、オーディトリアムとそのホワイエ、チャンバー・ホール、そしていくつかの練習室で構成されています。
各部屋の部分は、音響的に比較的閉じた部屋が要求され、各部屋はあまり大きくない。そこで、斜めの台形の壁を持つ構造システムを提案します。このシステムは、音響的に優れているだけでなく、建物全体に音楽的なリズムをもたらします。斜めに配置された台形の壁は、傾きが異なるようにランダムに配置されますが、スラブで連結され、相互に支持されます。上の壁は、下の壁と少なくとも一つの交点を持ち、垂直荷重が適切に伝達されるようにしています。チャンバーホールはもう少しスケールが大きい。ここでは天井仕上げの深さで壁と壁の間に梁が渡され、その上に上の部屋が建っています。風荷重や地震荷重などの水平荷重は、壁を介してスラブに伝わり、さらにその下の壁に伝わって基礎に到達するようになっています。
- Architekten
- 佐々木龍一/佐々木設計事務所
- Jahr
- 2018
- Projektstatus
- Design
- Bauherrschaft
- Chopin Institute
- Team
- Ryuichi Sasaki, Gen Sakaguchi, Anna Kwapien, Yuriko Ogura, Michal Rogozinski
- Local Architect
- Jacek Lenart/Studio A4
- Structure Engineer
- Ayumi Isozaki/Schnetzer Puskas Ingenieure AG
- Acoustic Consultant
- Akira Ono/Nagata Acoustics
- Landscape Design
- Takeshi Matsuo/PLAT design























