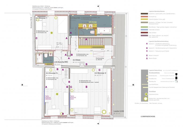
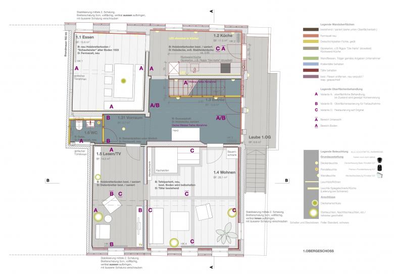
Denkmalgeschützter historischer Holzbau in Auw

Auw, Schweiz
Foto © Laura Egger

Gesamtrestaurierung mit Umbauarbeiten

Foto © Laura Egger
Foto © Laura Egger
Foto © Laura Egger
Foto © Laura Egger
Foto © Laura Egger
Foto © Laura Egger
Foto © Laura Egger
Foto © Laura Egger
Foto © Laura Egger
Foto © Laura Egger
Foto © Laura Egger
Foto © Laura Egger
Architekten
Mireya Heredero Architekten GmbH
Jahr
2022
Projektstatus
Gebaut
Bauherrschaft
Feldmann-Baumanagement AG
Denkmalpflege
Kantonale Denkmalpflege Aargau

Dazugehörige Projekte 

  • Moos
    playze
  • Reiters Reserve Premium Suiten
    BEHF Architects
  • Erweiterung und Instandsetzung Hallenbad Altstetten
    MIYO Visualisierung
  • Neubau von fünf Einfamilienhäusern
    Bäumlin+John AG
  • The Forge in der 105 Sumner Street in London
    Kiefer Klimatechnik GmbH

Magazin 

Andere Projekte von Mireya Heredero Architekten GmbH 

Umbau Isteinerbad zu Büronutzung
Basel, Schweiz
Anbau, Aufstockung und Umbau Zweifamilienhaus
Zürich, Schweiz
ARA Muri – Neubau GAK
Muri AG, Schweiz
Wohnüberbauung Islisberg
Islisberg, Schweiz
Wohn- und Gewerbeüberbauung Landstrasse
Wettingen, Schweiz