Eko-Viikki / Ahomansikka Experimental Housing
Nuppukuja 5-7 , Helsinki, Finnland
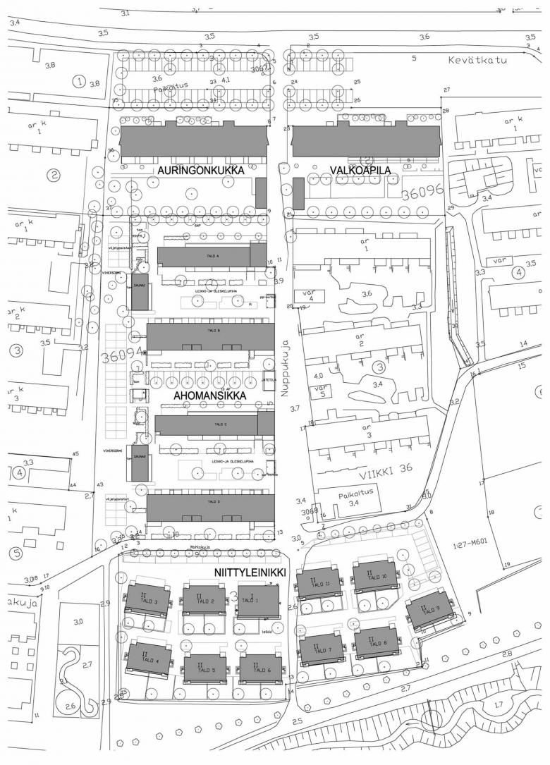
Helsinki has experimented with sustainability-oriented residential solutions in the Eko-Viikki housing area. Four housing company units, individually named after plants growing in the local area, Ahomansikka (Woodland strawberry), Niittyleinikki (Meadow buttercup), Auringonkukka (Sun flower), and Valkoapila (White clover), build up the residential quarter.
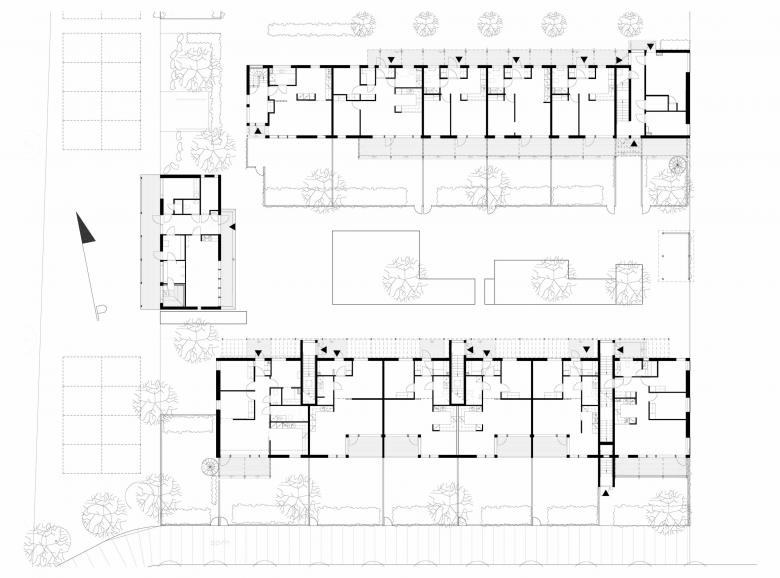
Social aspects were a big consideration, both in the private homes and among neighbours. The floorplans are designed so as to be spacious enough and adaptable enough for future living needs with only furniture changes, instead of requiring renovation or demolition. The rooms have flexible layouts with raised access floors and there is a variety of solutions for common spaces in the block. The residents were given the choice of private saunas but most preferred the communal facilities. The perimeters of the yards are defined by outbuildings comprising communal utility facilities and saunas that can be heated with electricity or wood. The timber design of the low-rise units is in warm-coloured shades. The buildings create a backdrop for the allotment gardens and greenery.
Passive methods for conserving energy are applied to the orientation of the houses, the facade openings, and the sheltered glazed balconies, which give access to the low-lying sun during the colder seasons. Some of the buildings are also equipped with solar panels. Due to strict financial limitations, all proposed technical innovations and solutions were not fully realised. The architecture can, however, be easily adjusted to the ecological choices of the inhabitants.
The project was re-started several times, and each time the design was changed. This resulted in a coarse façade and freely interpreted detailing.
"The Ahomansikka residential group is located in the experimental area of ecological building in Viikki. In its fragmented environment it forms a compact whole, which is simultaneously urban and intimate. The architecture is pleasingly individual but classic in its simplicity. Central elements in the facades and interiors are partially heated terraced, which provide bumper zones, contributing to the ecological weight of the block. The flats are pleasant and easily furnished, which has been achieved with small but significant means." -The Jury for the 0405 Exhibition, Museum of Finnish Architecture catalogue, on the middle unit Ahomansikka
- Architekten
- Kirsti Sivén & Asko Takala
- Jahr
- 2005
- Projektstatus
- Gebaut
- Team
- Kirsti Sivén, Kristiina Timonen, Asko Takala, Tapani Lehtinen, Kaisa Savolainen, Riku Rönkä, Niklas Mahlberg, Alex Torres, Suvi Tuuli Koripinen, Jonas Malmberg, Eero Holopainen, Annika Väisänen
Dazugehörige Projekte
Magazin
-
-
Bau der Woche
The Three-Body Problem: Trapped in a Wave Sandwich
Eduard Kögel, Scenic Architecture Office | 13.04.2026 -














