Erweiterungsneubau Volksschule Breitfeld
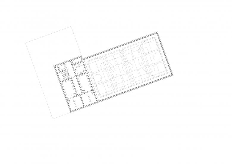
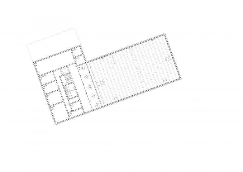
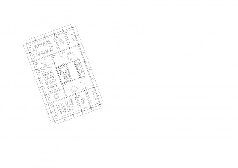
Die Schulanlage liegt im Breitenrain-Lorraine Stadtteil, welches zwischen 1890 und 1914 stark gewachsen ist und mit den grossen Wohnanlagen in den 1950er- und 60er-Jahren seine heutige Struktur und Gestalt erhalten hat. Das bestehende und markante Schul-gebäude wurde in den Jahren 1911-1912 erbaut. Die winkelförmige Schulanlage besteht aus einem Schulgebäude mit Hauswartswohnung und angebauter Turnhalle. Die Schulanlage ist der stilistischen Grundhaltung des Heimatstils verpflichtet, stellt aber innerhalb dieser eine ganz eigenständige Variante dar. Das Schulgebäude Breitfeld mit seiner mächtigen, gegliederten Gebäudevolumetrie und den grosszügigen Aussenräumen prägt im Wesentlichen das heutige Schulareal. Die randbegleitende Baumbepflanzung und die Einfriedung mit Mauern umfasst das gesamte Areal und lassen die Anlage als attraktives, zusammenhängendes Ensemble im Stadtgefüge in Erscheinung treten.
- Architekten
- Traxel Architekten
- Projektstatus
- Design
- Team
- Christoph Loretan, Nadine Schütz, Gabriela Traxel
- Landschaftsarchitektur
- Vb Landschaftsarchitektur, Rüti
- Bauphysik, Energie und Nachhaltigkeit
- Durable Planung und Beratung, Zürich
- Bauingenieur
- WaltGalmarini AG, Zürich














