Erweiterung Sammlungszentrum
Lindenmoosstrasse 1, Affoltern am Albis ZH, Schweiz
Bauherrschaft: Schweizerisches Nationalmuseum
vertreten durch Bundesamt für Bauten und Logistik, Bern
Bauvolumen: ca. 95 Mio. CHF
Programm: Erweiterung des Sammlungszentrums des Schweizerischen Nationalmuseums
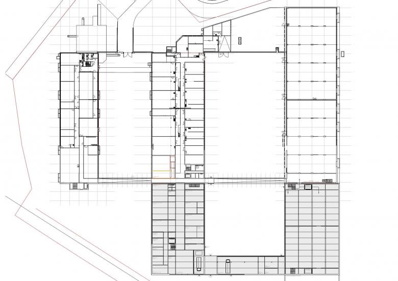
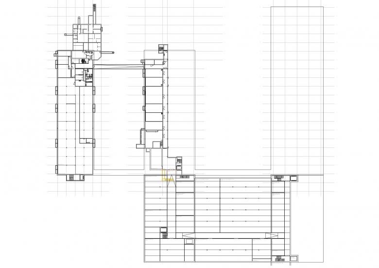
Das Schweizerische Nationalmuseen betreibt drei Museumsstandorte, der bekannteste und grösste davon ist das Landesmuseum in Zürich. Für die Aufbereitung und Lagerung diverser Kunst- und Kulturgüter welche nicht in den aktuellen Ausstellungen gezeigt werden können, unterhält das Nationalmuseum einen zentralen Sammlungsstandort in Affoltern am Albis. Für dieses bestehende Sammlungszentrum mit den Bereichen "Konservierung und Restaurierung", "Druck und Wissensvermittlung" sowie "Depot und Objektlagerung" soll am Ortseingang von Affoltern am Albis eine Erweiterung realisiert werden.
Ortsbaulich und funktional reagiert der vorgeschlagene Neubau mimikryartig auf den Ort und die Vorgaben der Bestandesbauten. Die bestehende Anlage, mit den in der Silhouette bewegten Baukörpern wird mit zwei präzise gesetzten Volumen derart ergänzt, dass mit einem abschliessenden Servicetrakt eine klosterartige Abfolge von Hofanlagen entsteht.
Ebenso wird die innere Organisation des Bestandes also die Erschliessung und die Nutzungsanordnung logisch stringent und konsequent in den Erweiterungstrakten weitergeführt. Im Erdgeschoss dockt der Neubau an den bestehenden erdgeschossigen Erschliessungskorridor an, und vermag so mit Hilfe einer neuen Lift- und Treppenanlage die Gesamtanlage zusammenzubinden. Die raumklimatischen Bedingungen der Lagerräume weisen museumsähnliche Bedingungen auf. Dabei muss auf unterschiedlichste Anforderungen der gelagerten Objekte reagiert werden.
Die Fassade schliesslich zeigt sich als eigenständige Interpretation des mit korrodierenden Stahlplatten verkleideten Bestands. Nachdem im Wettbewerb grossformatige, mit Eisenspänen versetzte Betonelemente den Ausdruck bestimmt haben, wurde dies mit im Spätherbst 2022 veröffentlichten bundesrätlichen "Bericht zur Erhöhung der Energieautonomie der Immobilien des Bundes" noch einmal überdacht. Die vertikale Gliederung der Fassaden wird weiterhin aufgenommen. Leicht zurückversetzte Fugen im selben rostenden Material wie im Bestand rhythmisieren neu die vorgesetzte Fassade aus PV-Elementen. Die Fassade soll den schützend bewahrenden Charakter der Institution mit einem zukunftsweisenden Ausdruck vermitteln.
Für das BBL ist die Planung ein BIM-Pilotprojekt. Das Objekt soll den SNBS Standard Gold, Minergie A ECO und das Label "Gutes Innenraumklima" erfüllen.
Das BBL beabsichtigt, die Planung als BIM-Pilotprojekt zu realisieren.
- Architekten
- Zimmermann Sutter Architekten AG
- Jahr
- 2021 - 2028
- Projektstatus
- Design
- Landschaftsarchitektur
- Albiez De Tomasi, Zürich
- Baumanagement
- JACO Jaeger Coneco, Zürich
- Farbberatung
- Atelier Katrin Öchslin, Zürich
- Statik + Fassadenplanung
- Dr. Lüchinger + Meyer, Zürich
- HLKSE-Ingenieur
- 3-plan AG, Winterthur
- Nachhaltigkeit
- EK Energiekonzepte AG
- Projektwettbewerb
- 2014, 1. Rang
- Planung
- 2021 - 26










