Feuerwerk Binder
Zillertalstraße 39, Fügen, Österreich
INHALT
Die Verwertung der vor Ort anfallenden Holzabfälle, die Erzeugung von Fernheizwärme für Fügen, die Produktion von Ökostrom und von Pellets – einer höchst komfortablen und umweltfreundlichen Alternative zum Heizmaterial Erdöl - ergeben in Summe ein Programm:
GEBALLTE ÖKOLOGISCHE INTELLIGENZ
Die dafür notwendigen geballten Baumassen werden nicht versteckt oder beschönigt. IM GEGENTEIL. Das Zillertal kann neben seinen Naturschönheiten und den touristischen Infrastrukturen damit eine zusätzliche ATTRAKTION im Trendfeld Umwelt- und Ressourcenschonung anbieten.
DAS BAUWERK
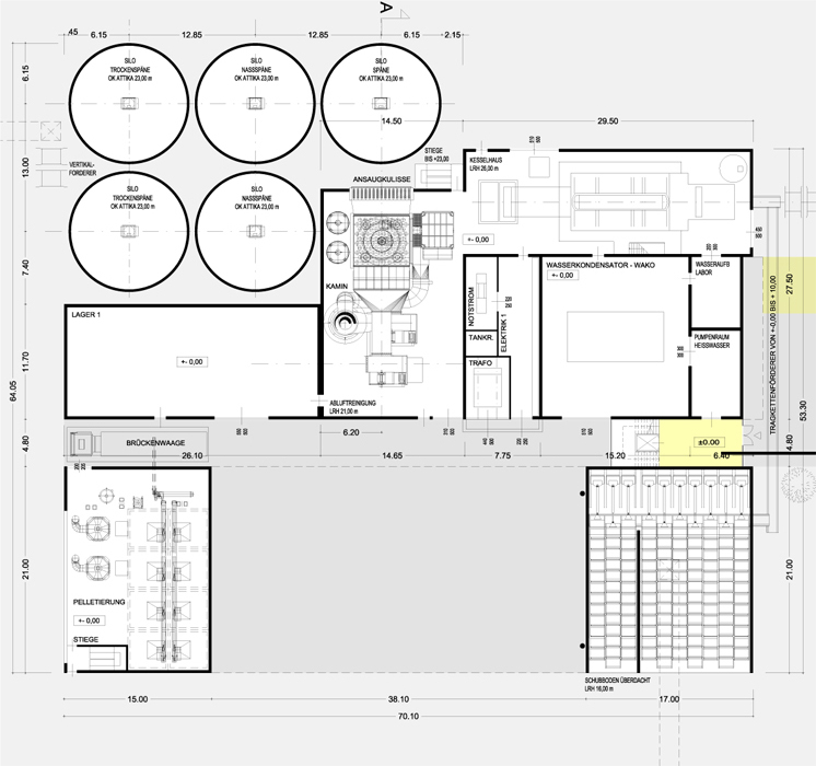
Die einzelnen Baukörper sind in einem kompakten Quadrat organisiert. Die Lage orientiert sich an der Ordnung der gelagerten Baumstämme, die den hohen optischen Reiz des Geländes ausmachen. Jede einzelne Funktion ist nach außen hin ablesbar
DAS ENTREÉ
Das Biomasseheizkraftwerk steht Besuchern für Führungen offen und auch kulturell „bespielt“ werden. Dazu dient das ebenfalls in Lärchenholz errichtetet Eingangsbauwerk mit einem Videovorführraum, einem Ausstellungsraum und dem Shop. Der Vorplatz wurde von den Künstlern Lois und Franziska Weinberger gestaltet.














