Grundschule Karlsfeld
Krenmoosstraße 44 , Karlsfeld, Deutschland
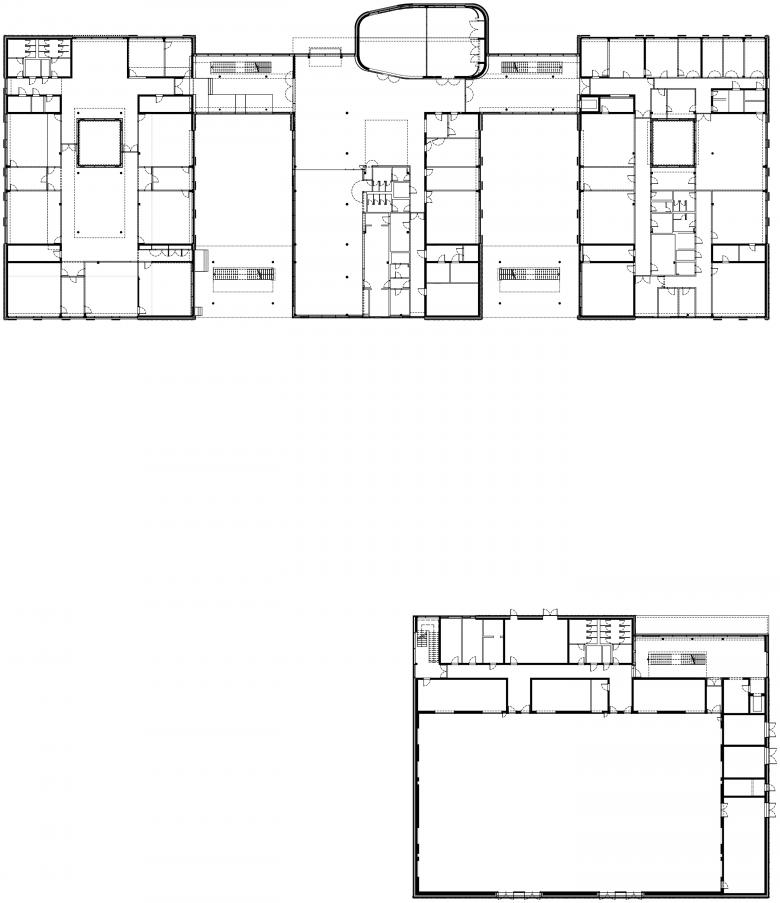
Die bestehende Grundschule Karlsfeld mit Sporthalle wurde 1962 errichtet und liegt in der Gemeinde Karlsfeld am nordwestlichen Stadtrand von München. Die Klassenräume entsprechen nicht mehr den heutigen technischen Ansprüchen und die Umsetzung aktueller pädagogischer Konzepte ist in diesen Räumlichkeiten nicht möglich. Zur Optimierung des Schulstandortes mit bestehender Mittelschule, Hort, Kindergärten und –krippen entstand daher südlich des Bestandsgebäudes der Neubau einer 6-zügigen Grundschule mit 3-fach Sporthalle. Das bisher nicht bebaute Grundstück wird bandartig von Nord nach Süd unterteilt. Den einzelnen Bändern sind eindeutige Funktionen zugewiesen. In graduellen Abstufungen werden Freiraum und Gebäude miteinander verwoben und so zu einem zusammenhängenden, sich in die Umgebung integrierenden Schulcampus entwickelt.
Leitidee für das Schulgebäude ist die aus dem pädagogischen Konzept heraus entwickelte bauliche Struktur mit Aufteilung der Nutzungen in funktional sinnfällige Teile: ein Schulhaus, in dem Lehren und Lernen als aktiver und interaktiver Prozess im Kontext der jeweiligen individuellen Rahmenbedingungen stattfinden kann. Das Gebäude selbst ist zweigeschossig und gliedert sich kammartig in drei Häuser. Dabei werden 4 Lerncluster und die zentralen Einrichtungen der Schule in einer bandförmigen Gesamtstruktur miteinander verwoben. Im zentralen Haus sind Foyer, Mensa und Mehrzweckbereich mit direktem Außenraumbezug angeordnet. Das Foyer als zentraler Treffpunkt und Kommunikationsort übernimmt die horizontale und vertikale Verteilung im Gebäude. Die drei Lerncluster der 2. – 4. Klassen bilden die Lernform im Obergeschossband. Die erdgeschossige Lage der Eingangsstufe entspricht den besonderen Anforderungen der Kinder am Beginn des Schullebens. Alle 6 Klassen eines Clusters sind um die zentrale Mitte, dem Herz des Clusters, angeordnet, was eine gleichberechtigte Partizipation an der gemeinsamen multifunktionalen Mitte ermöglicht. Differenzierungsräume liegen zwischen jeweils zwei Klassenzimmern. Teamräume am Eingang mit Blick auf den zentralen Mehrzweckbereich sind Rückzugs- und Arbeitsbereiche für die Lehrer.




















