Haus Mahlsdorf – Büro- und Wohnräume für eine Musikproduktionsfirma
Berlin, Deutschland
Das dreigeschossige Bürogebäude mit Arbeitsräumen für ein Musikproduktionsunternehmen und zwei Wohnungen befindet sich im ruhigen Berliner Stadtteil Mahlsdorf im Osten Berlins und wurde 2020 fertiggestellt.
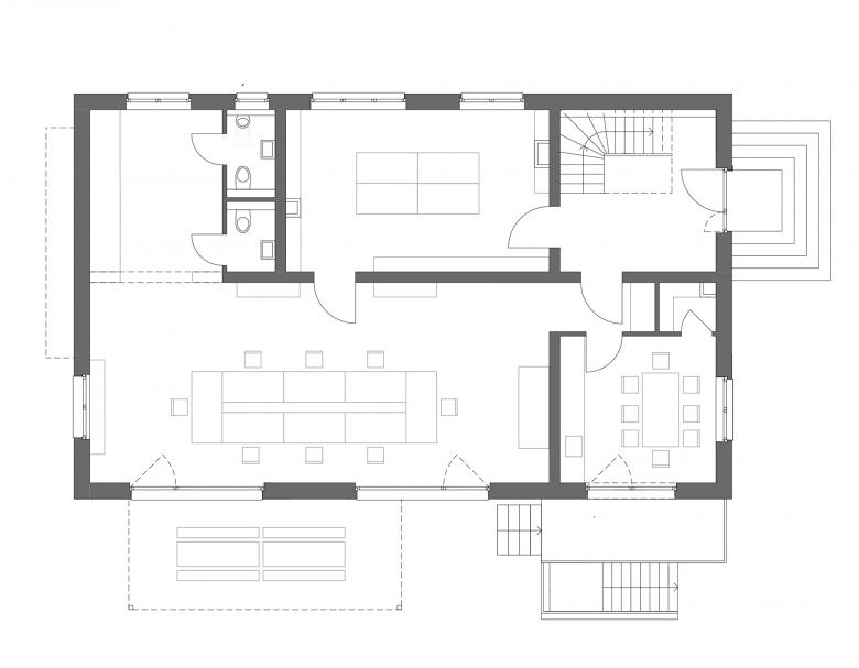
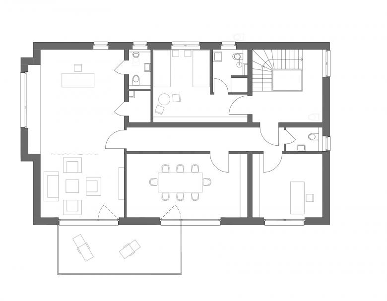
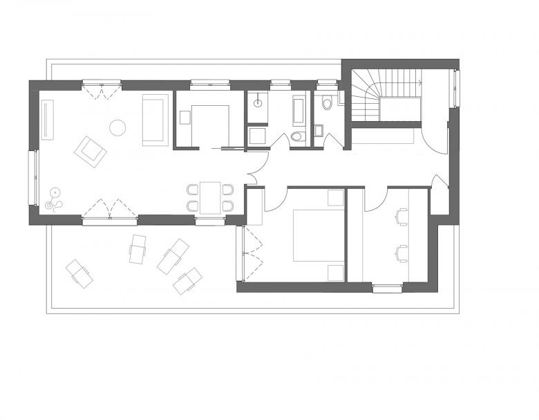
Der Neubau für ein unabhängiges Musiklabel und eine Musikproduktionsfirma im Bereich alternativer Musik wurde auf einem bestehenden Keller errichtet, der Lager- und Technikräume beherbergt. Im Erdgeschoss befinden sich ein großzügiger Open-Space-Büroraum mit Gemeinschaftsküche sowie der Lager- und Verpackungsraum für Musik- und Merchandisingartikel. Das Obergeschoss umfasst einen Besprechungsraum, mehrere Einzelbüros und ein Mini-Apartment für den vorübergehenden Aufenthalt von Gastmusikern. Im Dachgeschoss befindet sich ein größeres Apartment mit einer Dachterrasse.
Der Arbeitsbereich sowie die Teeküche und die Besprechungsräume sind nach Süden ausgerichtet und bieten einen Blick in den Garten, während sich die Lager- und Sanitärräume auf der Nordseite des Gebäudes befinden. Die großzügigen Fensterflächen ermöglichen in der kalten Jahreszeit solare Wärmegewinne, während die Außenjalousien im Sommer vor Hitze schützen, ohne die Sicht nach draußen zu beeinträchtigen. Die massiven Wände sind mit Kratzputz in hellem Salbeigrün verputzt, der gut mit den rötlich-ockerfarbenen Fensterrahmen sowie den rötlichen Pflasterklinkern an der Eingangstreppe und den Balkonbrüstungen harmoniert.
Das Mauerwerk der Außenwände besteht aus massiven Porenbetonsteinen. Sie bieten einen guten Wärmeschutz im Winter und ein angenehm kühles Raumklima in der Sommerhitze. Ihr großer Vorteil ist, dass sie ohne zusätzliche Dämmung verbaut werden. Die Steine dieses nachhaltigen Wandaufbaus bestehen aus natürlichen Rohstoffen ohne chemische Zusätze.
- Architekten
- transstruktura – Architektur • Stadt • Objekt
- Jahr
- 2020
- Projektstatus
- Gebaut
- Team
- Andreas Heim, Viktor Hoffmann, Nataliya Sukhova


















