Internationales Zeitungsmuseum
Pontstraße 13, Aachen, Deutschland
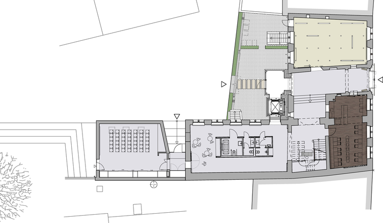
Das IZM, Internationale Zeitungsmuseum, wird im Rahmen der Euregionale 2008 Projekt „Route Charlemagne“ zu einem Internationalen Medienzentrum entwickelt. Aufgabe war die Umgestaltung eines hochkarätigen Baudenkmals, Aachens ältestes Bürgerhaus (1496), für eine zeitgemäße Museumsnutzung.
Neben der baulichen Umgestaltung war es unsere Aufgabe, eine Grundkonzeption für eine neue Ausstellung zu entwickeln und zu gestalten, die sich in die räumlichen Vorgaben einordnet. Federführend in einer interdisziplinären Arbeitsgruppe aus Hausvertretern, Museumspädagogen, Kurator und technischen Beratern entstand die ständige Ausstellung in 5 Raumsequenzen.
Vom Ereignis zur Nachricht | Medien für die Massen | Lesen und Lesen lassen | Lüge und Wahrheit | Media LAB
Diese münden abschließend in ein Cafe. Die Ausstellung wird ergänzt durch Wechselausstellung und Vortragsraum und Gastronomie im Erdgeschoss, Bibliothek im Obergeschoss und Verwaltungs- und Archivräume im Dachgeschoss.













