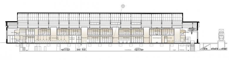
Lokstadthallen Winterthur
Züricherstrasse 40, Winterthur, Schweiz
- Architekten
- haefele schmid architekten ag
- Jahr
- 2020
- Projektstatus
- Design
- Bauherrschaft
- Implenia AG
- Team
- Winterthur Tragwerk, Brandschutz: Makiol + Wiederkehr AG, Beinwil a.S. Energie: Brücker + Ernst, Luzern Bauphysik: Wichser AG, Zürich Visuals: Atelier Brunecky
- Arge
- Oxid Architekur

















