Marquês de Abrantes' Palace

Marvila, Lisbon, Portugal
Main entrance of the Marquês de Abrantes Palace
Foto © Francisco Nogueira

Name of work in English
Marquês de Abrantes' Palace

Name of work in original language
Palácio Marquês de Abrantes

Placement
Shortlisted

Prize year
2022

Location
Lisbon, Portugal

Year completed
2020 (Year began 2017)

Authors
Tiago Mota Saraiva (1976 Portugal)

Collaborators
Architect: Paula Miranda, Mariana Robalo, Carolina Carneiro, Bárbara Bravo, Carolina Battle y Font, Carolina Piccolo, Gabriela Magalhães, Carlos Ramos da Silva, Rita Aguiar Rodrigues, Inés Sebastián, Raquel Coronel, Cristina Romão, Marta Vieira, Antoine Maulmin Others: Ana Catarino Construction: Mariella Gentile, Jannis Kühne
Program
Mixed use - Cultural & Social
Labels
Aggregation, Collective housing, Culture Centre, Heritage, Community

Total area
834,11 m2

Usable floor area
332,95 m2

Cost
25000 €/m2

Client
Câmara Municipal de Lisboa | Lisbon Municipality

Client Type
public

Map
LatLng: (38.7414576, -9.105480499999999)

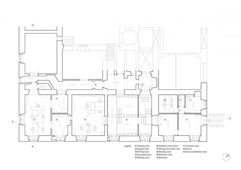
The Marquês de Abrantes Palace is a public building, municipal property, headquarters of the Musical Society 3 d’Agosto de 1885, which served as popular housing. The project proposes that through the installation of a local technical office of architecture, new uses can be designed in order to make culture, recreation and housing compatible. The Marquês de Abrantes Palace, on Rua de Marvila, wedged between two railway lines, is a public building that served since the XX Century as popular housing. It has been an expectant territory for several years: while it has the so-called social neighbourhoods to the North, to the South it finds the river and its speculative and gentrifying real estate projects. The project is linked to this dual reality, trying to ensure that through a process of collective questioning and decision-making, we can go against the logic of eviction of the working class allowing, on the contrary, their fixation. We argue that an architectural project of this nature begins with a blank sheet of paper, where the drawing appears through participation of local actors - residents, collectivities, partner institutions. The project has counted on public financing, especially through the BIP/ZIP program. The project starts in 2016 with an attempt to organize residents around an association. Faced with a failed attempt to do so, they direct our gaze to the Palace, a public building that served as popular housing throughout the twentieth century until the beginning of this century. At the same time, continues to serve as headquarters of one of the city's oldest collectivities - Musical Society 3 d'Agosto de 1885. In February 2017 a wing of the palace was open inaugurating, simultaneously, an exhibition where 5 artists reflected on the territory and its memory, and the installation of a local technical office of architecture. During 1 month, meetings were held allowing us to start designing its future use, always as public property. After the closing of the exhibition/local office in 2017 and 2020 the building was empty again. After a long battle we returned, in 2020, despite the pandemic, to open the local technical office following some of the same assumptions of 2017 - questioning and deciding collectively its future role in the city by congregating its cultural character with, again, serve as family homes. With the question: how to think the city from a building? The Palace presents a self-supporting structure of mixed masonry, with painted plasters, limestone stonework, render and tile cladding, wooden floors, frames and doors and wrought iron elements. As for its state of conservation, there were visible signs of degradation due to lack of maintenance, passage of time and exposure to climatic agents. Since this was a temporary intervention, the goal was to ensure that the existing structure was not damaged, not putting at risk the archaeological study of its past. The demolitions only affected constructions with no architectural value, or those that did not present security conditions. As for the new constructions, they make a clear distinction between what is existing and what is new - evident in the choice of reversible constructive solutions and use of contrasting materials. Briefly, the intervention was limited to: demolition of existing walls and floors, wall painting and repair, plaster application, floor application (OSB & vinyl flooring), ceiling painting, dropped ceiling application, installation of plywood shutters and installation of new electricity infrastructures and telecommunications networks.

Volume where the intervention took place
Foto © Francisco Nogueira
Exhibition room / Forum
Foto © Francisco Nogueira
Exhibition room / Forum
Foto © Francisco Nogueira
Meeting the residents of Marvila Street
Foto © Working with the 99%
Site plan
Zeichnung © ateliermob
Demolition and construction plan
Zeichnung © ateliermob
Detailed intervention plan
Zeichnung © ateliermob
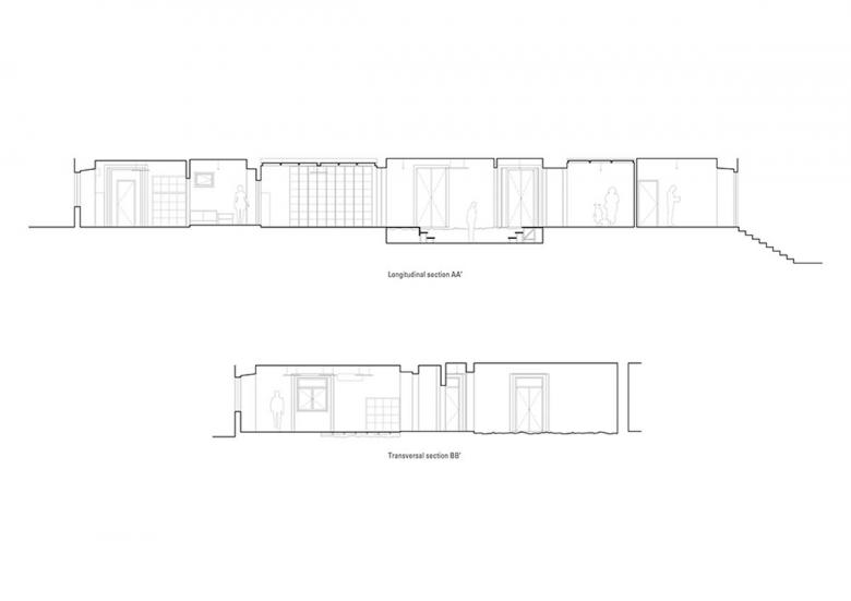
Demolition and construction sections
Zeichnung © ateliermob
Detailed intervention sections
Zeichnung © ateliermob
Architekten
ateliermob
Jahr
2020
Projektstatus
Gebaut

Dazugehörige Projekte 

  • Gymnasium Schulstraße
    Kronaus Mitterer Architekten
  • GROHE Water Experience Center
    D’art Design Gruppe GmbH
  • Limmatquai 4
    Kästli Storen
  • Volksschule Erlaaer Schleife
    Kronaus Mitterer Architekten
  • Ortsdurchfahrt Domat/Ems
    Luminum GmbH

Magazin