Megabaumax
Dornbirn, Österreich
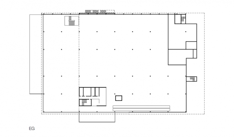
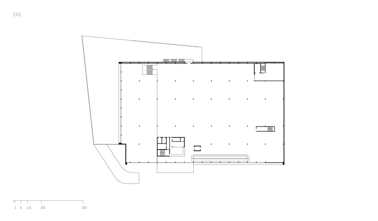
Eine große Handelskette wie Baumax betreibt professionelle Kundenerforschung und plant in eigenen Abteilungen Abläufe und Warenpräsentation bis ins kleinste Detail, wie Lagerregalmillimeter und Schriftart der Preisschilder. Der Handlungsspielraum der Architekten ist im Innenleben eingeschränkt. Auf die große Form, Struktur, Erschließung und Ausrichtung des Gebäudes bleibt die Konzentration gerichtet, über die Gestaltung eines Restaurantbereiches zum Beispiel, muss man sich keine Gedanken machen, das ist anderen überlassen. Die verglasten, offenen, freundlichen Seiten im Süden und Osten schauen zur Stadt. Geschlossen, aufgeräumt, mit Fassaden aus Blech stehen die übrigen Fronten zur Autobahn. Im Baumarkt, der jeden Zentimeter nutzt um den Patchworkteppich des Produkte-Sammelsuriums auszubreiten, ist Orientierung und Raumempfinden wesentlich. Über den doppelläufigen Rollsteig entlang der Glasfassade ist die imposante Größe des Bauwerkes zu erfassen und erleben. Großzügig wirkt auch der zweigeschossige Teil des Gartencenters im Süden. Die übrigen Abteilungen -Schwerlastabteilung im EG, Werkzeuge und Raumausstattung im OG - sind einstöckig. Wer in den Regalschluchten verloren zu gehen droht, orientiert sich nach dem Lichteinfall. Bei der Betonfertigteilkonstruktion der Halle wurde jede Stütze statisch optimiert. Stützen und Träger variieren in der Dimension nach abgetragenen Lasten. Um den Außenbereich der Gartenabteilung geordnet zu halten, wird die Fassade als uneinsichtige Innenhofwand weiter gezogen. Die drei beabsichtigten Werbewürfel am Dach des Gebäudes konnten auf einen – kleineren – reduziert werden.
- Architekten
- Gohm Hiessberger Architekten
- Jahr
- 2007
- Projektstatus
- Gebaut
- Bauherrschaft
- Schömer GmbH Klosterneuburg












