world-architects.com
Profiles of Selected Architects
Profile
Projekte
Jobs
Veranstaltungen
Magazin
Themen
Netzwerk
Login
Registrieren
Deutsch
Català
Deutsch
English
Español
Français
Italiano
Nederlands
Português
中文
日本語
Català
Deutsch
English
Español
Français
Italiano
Nederlands
Português
中文
日本語
World-Architects
Projekte
Mehrzweckhalle Schule Mettlen
Dättlikon, Schweiz
Foto © Christian Schwager
Foto © Christian Schwager
Foto © Christian Schwager
Foto © Christian Schwager
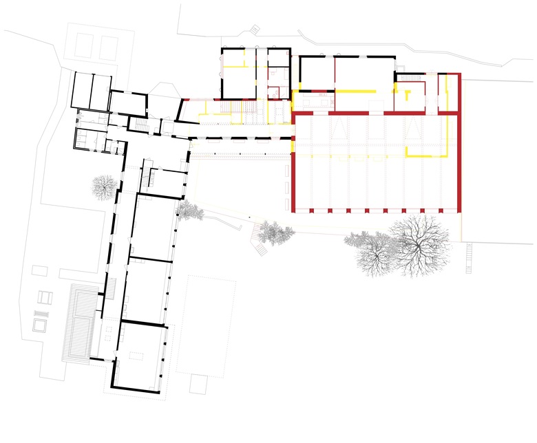
Grundriss Erdgeschoss
Zeichnung © Schneider Gmür Architekten
Querschnitt
Zeichnung © Schneider Gmür Architekten
Schulen
Sporthallen
Architekten
Schneider Gmür Architekten
Jahr
2010
Projektstatus
Gebaut
Bauherrschaft
Gemeinde Dättlikon
Dazugehörige Projekte
Moos
playze
Reiters Reserve Premium Suiten
BEHF Architects
Erweiterung und Instandsetzung Hallenbad Altstetten
MIYO Visualisierung
Neubau von fünf Einfamilienhäusern
Bäumlin+John AG
The Forge in der 105 Sumner Street in London
Kiefer Klimatechnik GmbH
Zeichner*in
marchwell
Bauleiter/in oder Hochbautechniker/in (m/w/d), 80–100%
schulzarchitektur gmbh
Projektarchitektin / Projektarchitekt ETH/FH 80%-100%
RUPRECHT ARCHITEKTEN
Mehr
Magazin
Headlines
Getty Center to Close Temporarily for 'Major Modernization Efforts'
John Hill
| 10.04.2026
Insight
Energy-Positive Construction
Elias Baumgarten
| 09.04.2026
Headlines
Kengo Kuma To Design New National Gallery Wing
John Hill
| 08.04.2026
Film
Architecture for People, Not for Architects
John Hill
| 08.04.2026
Found
2 x 2 = 4 Books from 2 Architects
John Hill
| 07.04.2026
Andere Projekte von Schneider Gmür Architekten
Stiftung Vivala Weinfelden
Weinfelden, Schweiz
Haus für Demenz der Thurvita AG
Rossrüti, Schweiz
Neubau Wohnüberbauung Stationsstrasse
Embrach, Schweiz
Erweiterung Stiftung Pigna
Kloten, Schweiz
Haus Meerpferd Schmiedgasse
St. Gallen, Schweiz