MFH Sumatra
Sumatrastrasse 40, Zürich, Schweiz
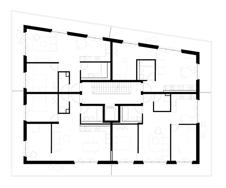
Inmitten eines schönen Baumbestandes im Zürcher Universitätsquartier steht dieses Wohnhaus mit 20 Wohnungen, die effizient um das mittig gelegene Treppenhaus angeordnet sind. Jede Wohnung öffnet sich nach zwei Seiten und bietet so jeder Partei abwechslungsreiche Ausblicke in das schöne Quartier, die umlaufenden Balkonen lassen den Austritt aus jedem Zimmer zu und unterstreichen so die Einbindung in das nahe und reichlich begrünte Umfeld.
Der pragmatische Kreuzgrundriss wird in der Fassade durch die Fallrohre in der Mitte der Fassaden angedeutet, das Staketengeländer aus Metall verbirgt in seinem Untergurt die Balkonentwässerung. Vorfabrizierte Faserzementleibungen fassen die raumhohen Holz-Aluminium-Fenster ein und erweisen den Sandsteinarbeiten der alten Häuser der Umgebung so Reverenz, ohne historisierend zu wirken.
Im Kern des Hauses befindet sich das kompakte Treppenhaus, dessen Wände und Decken aus OSB-geschaltem Sichtbeton mit dem Boden aus grün-weissem Terrazzo und dem Staketengeländer mit Holzhandlauf kontrastieren. Die Wohnungstüren mit Eichenholzfournier wirken warm und laden zum Betreten der Wohnungen ein.
In den Wohnungen ist der hohe Ausbaustandard mit Formpark-Eichenparkett und Küchen mit Eichenholz-Griffleisten fortgesetzt. Die Badezimmer mit grünlichem Zementmosaik nehmen die Leitfarbe des Hauses in den Wohnungen auf. Durchgehende Wandflächen verbinden auch in den kleineren Wohnungen die Abfolgen der einzelnen Räume. Die Strukturierung der Wohnungen geschieht durch lauter raumhohe Elemente: Fenster- und Türöffnungen reichen stets vom Boden bis zur Decke und bilden so das Gegenstück zu den Wandscheiben.
- Architekten
- Juho Nyberg Architektur
- Jahr
- 2018
- Projektstatus
- Gebaut
- Bauherrschaft
- privat
- Team
- Martin Schiess, Sarah Hintermann, Markus Roth, Juho Nyberg














