Nanliang Boutique Inn

Dashuwa Village, Beijing, China
west facade
Foto © BTA

This is a refurbishment of boutique inn in the mountain village, with facinating natural scenery, and disrepaired farmhouse. There is no exclusive leisure facility in the existing village. However life needs nature and also culture. In such a full of nature surrounding village, each independent farmhouse carries the task of providing greater possibilities of culture. This task gives the guest a possibility to meet quiet moment after leaving the city, being touched momentarily after returning to nature, and introspection when they are alone. Architecture is the media to connect these possibilities, on the back of the wall, in the corridor under the skylight, in the darkness of space under the celling. Here we will find a moment of "malaise" which is a sedative, lets the time pause, gives us a second to be familiar with this malaise, and retrieve the forgotten freshness.

entrance1
Foto © BTA
entrance2
Foto © BTA
diningroom1
Foto © BTA
diningroom2
Foto © BTA
courtyard
Foto © BTA
bedroom1
Foto © BTA
bedroom2
Foto © BTA
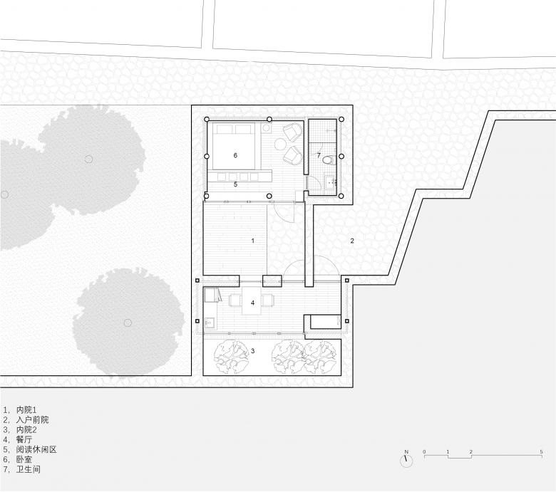
No.6 plan
Zeichnung © BTA
entrance1
Foto © BTA
entrance2
Foto © BTA
entrance3
Foto © BTA
entrance4
Foto © BTA
corridor1
Foto © BTA
corridor2
Foto © BTA
corridor3
Foto © BTA
corridor4
Foto © BTA
corridor5
Foto © BTA
corridor6
Foto © BTA
corridor7
Foto © BTA
corridor8
Foto © BTA
corridor9
Foto © BTA
corridor10
Foto © BTA
courtyard1
Foto © BTA
courtyard2
Foto © BTA
bedroom
Foto © BTA
view-from-bathroom-to-mountain
Foto © BTA
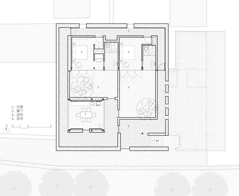
No.7 plan
Zeichnung © BTA
site plan
Zeichnung © BTA
Architekten
beyondtime architects
Jahr
2023
Projektstatus
Gebaut

Dazugehörige Projekte 

  • Moos
    playze
  • Reiters Reserve Premium Suiten
    BEHF Architects
  • Erweiterung und Instandsetzung Hallenbad Altstetten
    MIYO Visualisierung
  • Neubau von fünf Einfamilienhäusern
    Bäumlin+John AG
  • The Forge in der 105 Sumner Street in London
    Kiefer Klimatechnik GmbH

Magazin 

Andere Projekte von beyondtime architects 

后时产品
咕咕之家
北京, China
天悦壹号室内改造设计
北京, China
Service Center of Peony Performance Park
Fuzhou, China
五号住宅室内设计
上海, China