Neubau Autohaus Gerster
Herrschaftswiesen 14, Koblach, Österreich
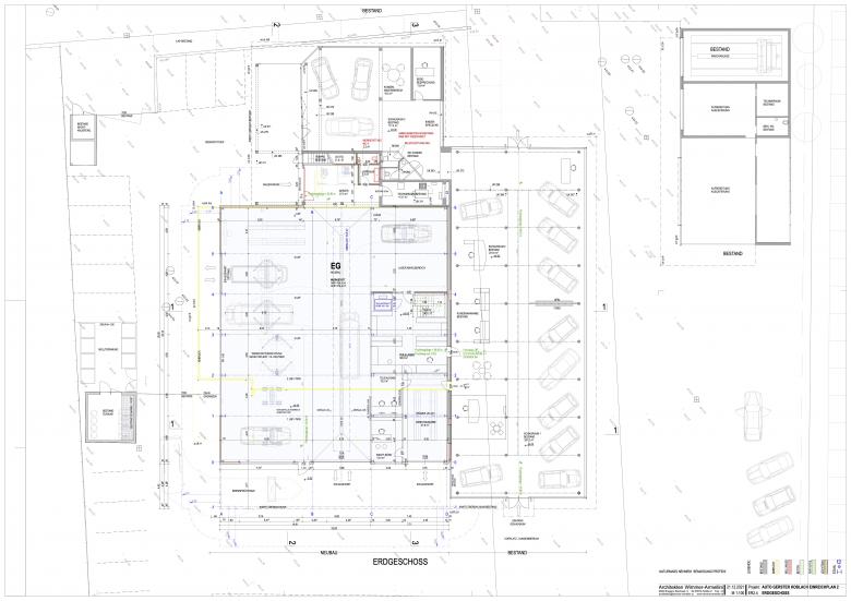
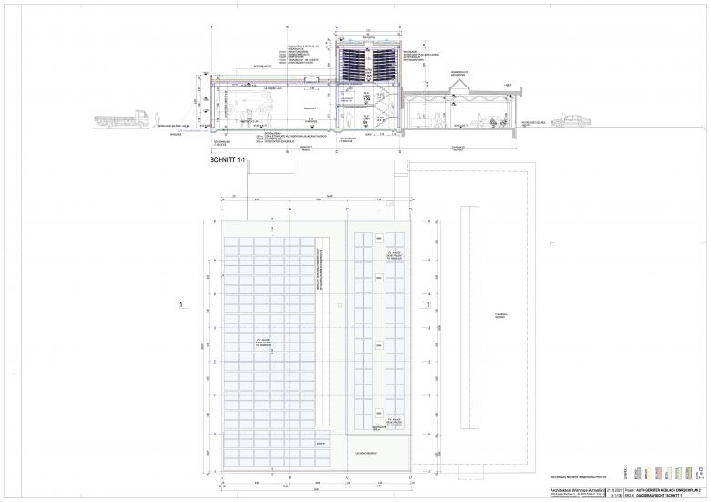
Bestehend sind 2 Gebäude, im Westen ein Schauraum mit Autowerkstatt inkl Nebenräumen, Lagern sowie im Osten ein Gebäude mit Aufbereitung, Waschanlage und Technikraum. Die bestehende Autowerkstatt samt Teilelager wird abgebrochen und mit allen notwendigen Nebenräumen und Lagern neu aufgebaut. im EG entsteht eine neue Autowerkstatt mit 8 Arbeitsplätzen, Werkstattbüro, einer Direktannahme sowie einem Teilelager. Im 1.OG wird ein weiteres Teilelager untergebracht, im 2.+3.OG entsteht ein neues Reifenlager mit dynamischem Lagersystem. Der bestehende Schauraum wird nicht verändert, die Aufstellung der Autos im Freien wird neu gestaltet. Für den Neubau kommt eine Tiefgründung zur Ausführung. Die neue Werkstatthalle wird mit Stahlkonstruktion und Verkleidung aus Alupaneelen in heller Farbe konstruiert. Das Dach wird extensiv begrünt und eine Photovoltaik-Anlage wird darauf neu installiert.
- Architekten
- Architekten Wimmer-Armellini
- Jahr
- 2022
- Projektstatus
- Design









