Neubau Mehrfamilienhaus
Der Ersatz der beiden Mehrfamilienhäuser aus den 50er Jahren bietet die einmalige Gelegenheit ein Passstück zwischen die talflankierende Strassenbebauung am Ortseingang Tägernau und den quer zur Strasse gestellten Zeilenbauten einzufügen.
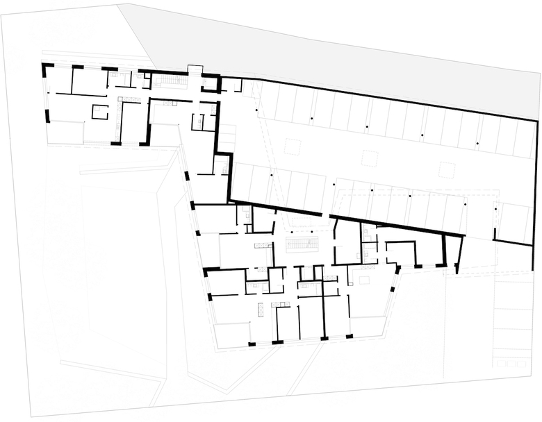
Das neue Mehrfamilienhaus lehnt sich an den Fuss der auslaufenden, zweitletzten Nagelfluhbank der regionaltypischen Schichtrippenlandschaft von Rapperswil-Jona.
Im östlichen Teil übernimmt es den Strassenvorraum des benachbarten Gewerbebaus und faltet sich anschliessend zur Strasse vor, um in die Flucht der den Strassenraum bildenden Zeilenbauten überzuleiten. Der so gewinkelte Baukörper vermittelt westseitig einen grosszügigen Spiel- und Aufenthaltsbereich zu den benachbarten Bauten.
Die Freiraumgestaltung orientiert sich in der Materialisierung und der Bepflanzung an der Anforderung einer hohen Nutzungsqualität und einer guten Adaption der Grünstruktur im Quartier.
Das vorgeschlagene Volumen verbindet auch in der Höhenentwicklung die ortsbaulichen Strukturen und leitet von drei Geschossen über zu vier Geschossen mit Attika und bewohntem Untergeschoss.
Die Fassade wird mit blaugrauem Eternitschiefer verkleidet und mit einem Betonsockel gegen die Umgebung abgeschlossen. Dies verleiht dem Gebäude eine Art fliessende Haut.
Adäquat zur Gebäudeform kann so der mäandrierende Körper, die Abwicklung der Fassade begleitend, umspannt werden und das Wechselspiel von Lochfenster und Bandfenster unterstreichen.
- Architekten
- roos architekten ag
- Jahr
- 2017
- Projektstatus
- Gebaut
- Landschaftsarchitektur
- zschokke & gloor Landschaftsarchitekten
Dazugehörige Projekte
Magazin
-
-
Bau der Woche
The Three-Body Problem: Trapped in a Wave Sandwich
Eduard Kögel, Scenic Architecture Office | 13.04.2026 -













