Neubau Wohnhaus Kirchstrasse
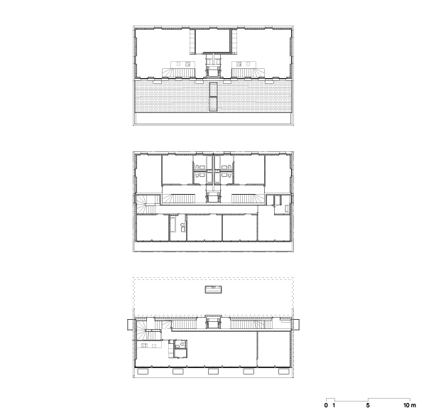
Im Park eines bestehenden Wohnhauses erbaut, stellt die “Stadtvilla“ mit Gartenwohnung und zwei Maisonette Attika-Wohnungen eine qualitätvolle Verdichtung nach innen dar.
Sandgestrahlte Sichtbetonfassaden sowie ein Innenausbau aus heimischem Fichtenholz charakterisieren den Neubau.
- Architekten
- Beda Dillier
- Jahr
- 2010
- Projektstatus
- Gebaut
- Team
- Roger Durrer, Beni Hess
- Fotografien
- Roger Frei, Zürich
Dazugehörige Projekte
Magazin
-
Bau der Woche
The Three-Body Problem: Trapped in a Wave Sandwich
Eduard Kögel, Scenic Architecture Office | 13.04.2026 -
-













