Progenius Park
Ningbo, China
Progenius Park is different from a buyer's shop in that it is a “Styling” retail that combine bricks and clicks. It provides consumers with personalized wear planning through professional stylist. With "Hunting in Fitting Park" as the starting point for the conceptual design, the store along the street also give it an opportunity to closely connect with the block. Greater Dog Architects tries to establish a "public" spatial language, connect with "inside and outside", and integrates the common elements of nature and outdoors into the retail design.
Daily fitness equipment and public facilities in urban parks: like extension railings, platform seats, waist twisters, hand rotating wheels, pavilions, street lamps, rough stones, tree and branches, etc. These daily objects familiar to the public are brought into the space to create an interesting experience space due to the conversion of use scenes and functions.
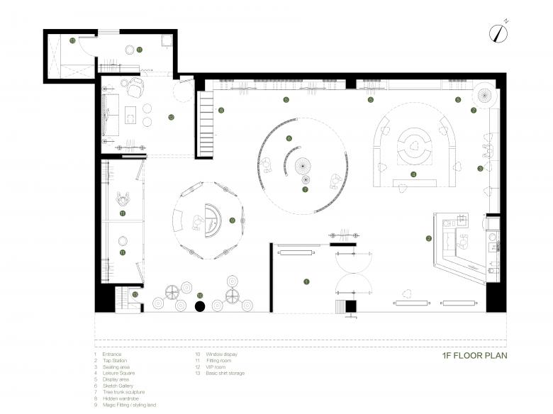
The "Styling" journey starts with a hunting map of the entrance, which is distributed according to the route of the map. The interior space includes: tap station, leisure square, sketch gallery, magic mirror fitting area, display area, and VIP room mainly.
The retreating entrance creates a semi outdoor space for public; The tap station is a pavilion-like space with an independent structure that provides coffee and drinks; The rotatable sketch Gallery displays the hand-sketch of more than one thousand fashion designers; the dialogue between natural trees and stainless steel sheets; carved on the wall tells the details of the body measurement; the suit hiding in hydraulic-style cabinet; the hanger design in the shape of twigs; borrowing five convex mirrors to create a fitting circle, etc…
Progenius Park is more like an public urban space for contemporary younger to play. There is no sense of distance, and it is a bit more fun when consumers looking for a products in the space.
- Architekten
- Greater Dog Architects
- Jahr
- 2021
- Projektstatus
- Gebaut
- Bauherrschaft
- Progen
































