Scientific Technological Agroalimentary Park "PCiTAL Gardeny"
Plaça Exèrcit, Lleida, Lleida, Spanien
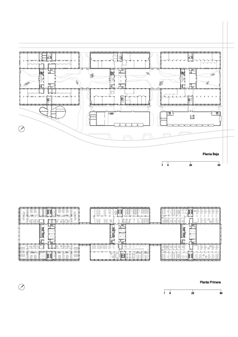
The architectural proposal consists in refurbishing the H buildings (ancien barracks in the city of Lleida) and in reconvert then into big spaces with multiple uses.
The aim was to conserve the idea of the six existing volumes which are connected to the others and have flexible open-plan floors. This project is the first step for the regeneration of an abandoned zone of the city of Lerida.
This proposal is materialized by covering the existing exterior courtyards located between volumes. This fact permits to join the three H buildings together in order to obtain a single building. The modular lath houses are extracted directly from the innovative agricultural world and allow to create a thermal space and generate a microclimate that supports the passive construction systems and the interior comfort in buildings.
These courtyards are the structure of the building. The spaces are treated with the aim of achieving a life that can provide physical and mental comfort in workplaces and offices. Each courtyard is projected from the color and vegetation.
The roofs of the buildings are considered community space as well. There are some meeting rooms which are directly connected to gardens that store rainwater and provide views to the entire city of Lleida.
Vertical communication spaces have real and visual contact with the courtyards. A slight staircase gives access to the different floors where common services for offices are concentrated. Color also plays an important role.
As architects we provide with some qualities and systems which are adaptable to the needs of each Company, institution or research center.
The exterior façades have tried to respect the physiognomy, textures and colors of the old buildings. The slats that prevent from direct solar radiation break the original configuration but permit that we evoke the preceding construction.
- Architekten
- picharchitects
- Jahr
- 2009
- Projektstatus
- Gebaut














