Staatliche Realschule Bruckmühl
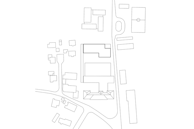
Die Staatliche Realschule Bruckmühl bestand bisher aus einem Schulbau aus dem Jahre 1928/1929 und einer Sporthalle aus dem Jahre 1978 und wurde 2007 um zusätzliche Klassenzimmer und Fachräume erweitert.
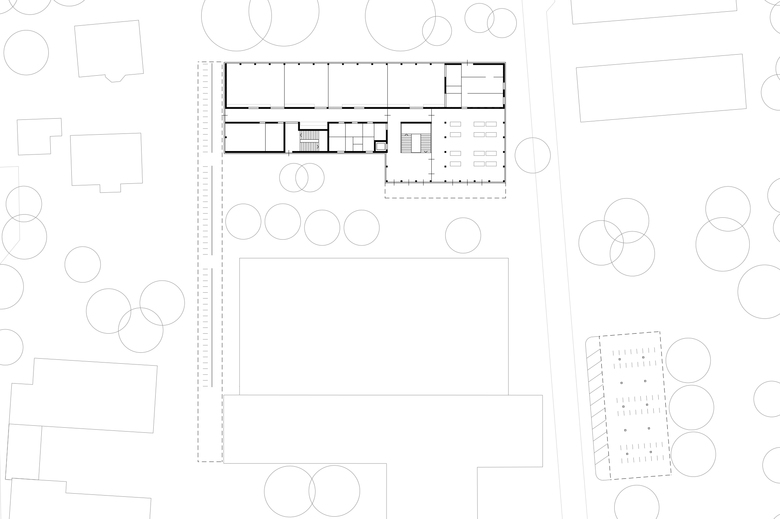
Um dem erforderlichen Raumprogramm und den Anforderungen einer 4-zügigen Realschule gerecht zu werden, wurde die Schule nun um weitere Fachräume der Biologie, Physik, Informatik, Haushalt und Ernährung mit entsprechenden Nebenräumen, sowie einen teilbaren Mehrzweckraum, Musikraum und einen offenen Ganztagesbereich erweitert.
Dabei orientiert sich der dreigeschossige Neubau mit seiner Geometrie parallel zur Bestandsstruktur in Ost-West-Richtung im Westen an den festgelegten Baulinien, im Osten an den erforderlichen Abstandsflächen zur Rathausstraße und im Norden an den Bestandsbäumen.
Die Pausenfläche für die Schüler wird zwischen Sporthalle und dem Neubau angeordnet und räumlich durch eine Kolonnadengang als Übergang zum Bestandsgebäude begrenzt, der gleichzeitig die notwendigen Fahrradstellplätze überdacht.
Der Baukörper und sein äußeres Erscheinungsbild orientieren sich in Größe, Materialität und Farbigkeit an den Bestandsgebäuden. Eine vorgehängte Fassade aus Aluminiumprofilen übernimmt den Witterungsschutz und sorgt gleichzeitig für eine Filterfunktion in Teilbereichen der Holz-Alu-Fensterflächen. Der Sonnenschutz wird über schienengeführte Anlagen mit Textilscreens sichergestellt und im Innenbereich mit Blendschutzrollos ergänzt.
Die Fassadelamellen folgen konsequent dem Gebäuderaster, welches auch im Innenbereich über abgehängte Akustiklamellen in den Flurbereichen fortgeführt wird.
Die im Innenbereich verwendeten Materialien Sichtbeton mit Bretterschalung, Hochkantlamellenparkett, Betonwerkstein und Massivholztüren tragen den Themen Nachhaltigkeit, Langlebigkeit und Robustheit Rechnung.
- Architekten
- Schwinde Architekten
- Jahr
- 2017
- Projektstatus
- Gebaut
Dazugehörige Projekte
Magazin
-
-
Bau der Woche
The Three-Body Problem: Trapped in a Wave Sandwich
Eduard Kögel, Scenic Architecture Office | 13.04.2026 -


















