Territoire imaginaire Expo.02

Foto © Regula Bearth

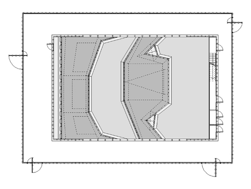
Bietet die gebaute Schweiz noch Raum für Träume und Zukunftsentwürfe? Ausgehend von dieser Frage lancierten die Expo.02 und der VSKB einen  nationalen Wettbewerb. Aus der Vielzahl von Eingaben wurden fünf Arbeiten ausgewählt. Die Aufgabe der Ausstellungsarchitekten bestand darin, einen Ausstellungsraum zu konzipieren, der die Eigenständigkeit der Beiträge berücksichtigt, gleichzeitig aber auch die allgemeine Aussage formuliert. Die Szenografie privilegiert bewusst keine der fünf Ideen, weil alle, zusammen mit vielen anderen, unsere Zukunft prägen werden. Die Grundstruktur gleicht einem abstrahierten Landschaftsmodell, mit einer Abfolge von Bergund Talräumen. Jeder Beitrag erhält einen eigenen Raum, bestimmt durch die von den Autoren gewählten Medien. Zwischen den einzelnen Bereichen kehrt der Besucher jeweils in den verglasten Umgang zurück, wo eine Textlandschaft ein Bild der Schweiz zwischen Bewegung und Stillstand zeichnet.

Foto © Regula Bearth
Foto © Regula Bearth
Foto © Regula Bearth
Foto © Regula Bearth
Architekten
GXM Architekten
Jahr
2002
Projektstatus
Gebaut

Dazugehörige Projekte 

  • Gymnasium Schulstraße
    Kronaus Mitterer Architekten
  • GROHE Water Experience Center
    D’art Design Gruppe GmbH
  • Limmatquai 4
    Kästli Storen
  • Volksschule Erlaaer Schleife
    Kronaus Mitterer Architekten
  • Ortsdurchfahrt Domat/Ems
    Luminum GmbH

Magazin 

Andere Projekte von GXM Architekten 

Le Ticle Zentrumsüberbauung
Delémont, Schweiz
Multifunktionale Überbauung Gare des Eaux-Vives
Genf, Schweiz
Familien- und Generationenhaus
Zürich, Schweiz
Dauerausstellung MICR
Genf, Schweiz
Wohnwerkstatt
Dübendorf, Schweiz