Toni Catany International Photography Centre
Llucmajor, Spanien
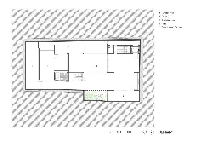
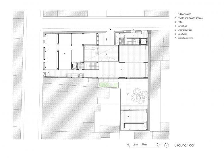
In the old town of Llucmajor (Mallorca), occupying part of the house where the photographer Toni Catany was born, we built the International Photography Centre, based on the work and the collection of this great artist.
The place, the history, the remains, the scale, the classic typology of houses closed to the outside and open onto courtyards… all of this obviously forms the base for the project.
They are phantoms or realities that accompany us, though we have to control them.
However, we did not forget that our mission here was to build a contemporary museographic centre of reference as a suitable setting for exceptional works.
We conserved remains, rebuilding some, we primitively restored the façades with care… But the space is new, open, flexible, large, available, with very controlled light, sometimes shadowy…
Some singular elements appear: a staircase that takes flight, another that recreates the chromatic world of the artist in question...
Though the protagonist is always the space with an accompanying detail at hand that is both radical and approachable.
- Architekten
- Mateo Arquitectura
- Jahr
- 2021
- Projektstatus
- Gebaut
- Bauherrschaft
- Government of the Balearic Islands, Spanish Ministry of Culture
- Contractor
- Obras y Pavimentos MAN
- Technical architect
- Biel Garcies
- Structures
- BAC Engineering Consultancy Group
- Installations and sustainability
- DEERNS
- Bill of quantities
- Arrevolt
Dazugehörige Projekte
Magazin
-
-
Bau der Woche
The Three-Body Problem: Trapped in a Wave Sandwich
Eduard Kögel, Scenic Architecture Office | 13.04.2026 -





























