Turmhaus
Bromskirchen, Deutschland
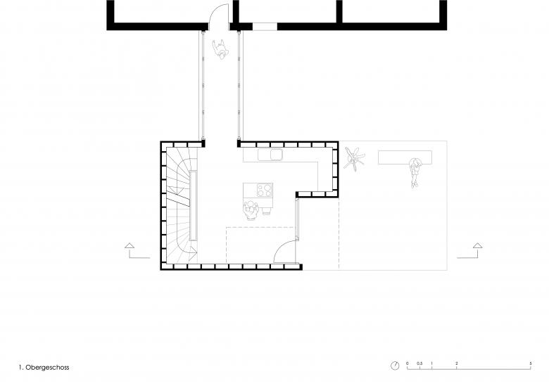
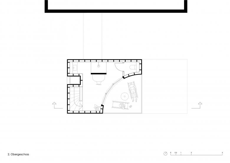
Der Um- und Weiterbau vorhandener Gebäude über Generationen ist ein wichtiges Thema im ländlichen Raum. Eine zeitgemäße Interpretation dieses Themas ist das Turmhaus im nordhessischen Bromskirchen. Eine junge Familie, der die Wohnung im elterlichen Haus zu eng wurde, entschied sich für eine Form des Neubaus, die sowohl den Wunsch nach Eigenständigkeit als auch das Bedürfnis nach solidarischer Nähe zur Elterngeneration erfüllt: Ein Solitär, der sich markant vom 60er-Jahre-Haus der Eltern abhebt, aber über eine Brücke mit dem Altbau verbunden ist.
Um dem Landverbrauch zu minimieren, wurde auf kleinster Fläche (ca. 20 qm) der Anbau realisiert, indem vier Räume aufeinandergestapelt wurden, die abwechselnd introvertiert und extrovertiert sind. Im Untergeschoss befindet sich das Schlafzimmer, im Erdgeschoss die Küche mit Essbereich, im Zwischengeschoss das Lesezimmer und im Dachgeschoss das Bad mit Dachterrasse, die einen spektakulären Blick auf die Umgebung freigibt.
- Architekten
- Christoph Hesse Architekten
- Jahr
- 2018
- Projektstatus
- Gebaut
















