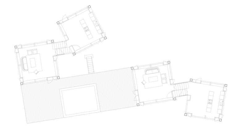
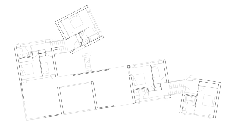
Häuser Begur
Versunkene präzise Kuben im Wald - mit Terrassen in den Baumwipfeln.
- Architekten
- sandy brunner Architektur
- Jahr
- 2006
- Projektstatus
- Gebaut
- Bauherrschaft
- private
- Team
- in collaboration with Bárbara Noguerol Diez + Estanislau Puig Durall Arquitectos





























