Verwaltung Museum Tinguely
Solitude Park, Basel, Schweiz
Mit der Sanierung des historischen Bau 503, Paul Sacher-Anlage 2 im Solitudepark Basel, wurde ein schützenswertes Gebäude aus dem Inventar der Denkmalpflege behutsam in eine moderne Arbeitsumgebung transformiert. Der Ursprung des Hauses reicht ins frühe 19. Jahrhundert zurück. Nach einer umfassenden Erneuerung, die historische Substanz, technische Anforderungen und zeitgemäße Arbeitsbedürfnisse vereint, dient es heute als Sitz der Verwaltung des Museum Tinguely.
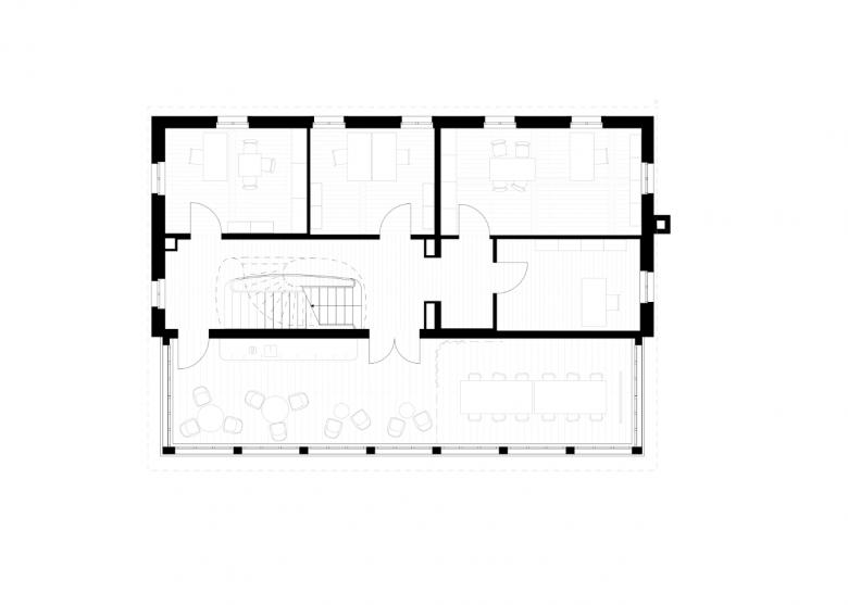
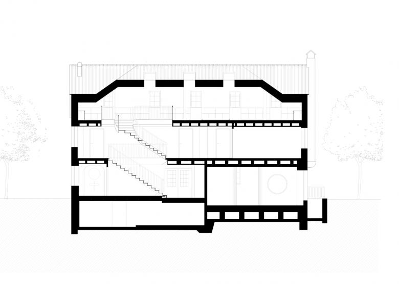
Ziel war es, funktionale und flexible Arbeitsräume zu schaffen und zugleich die architektonische Identität zu bewahren. Die neue Treppenanlage und die überarbeiteten Innentüren zeigen exemplarisch das Zusammenspiel historischer Elemente mit heutigen Anforderungen. Der ausgebaute Dachstock mit Lukarnen und Giebelfenstern bietet helle Arbeitsplätze und eine effiziente Archivablage, eine neue zentrale Treppe verbindet alle Geschosse und in der verglasten Veranda entstand ein Besprechungsbereich mit Blick auf den Rhein.
Das Raumkonzept balanciert fokussiertes Arbeiten und Kollaboration. Klassische Arbeitsplätze, offene Meeting-Zonen sowie Servicebereiche wie Teeküche und Aufenthaltsraum schaffen vielfältige Nutzungsmöglichkeiten. Das Farbkonzept interpretiert den historischen Kontext neu und knüpft gestalterisch an die Ökonomiebauten des Solitudeparks an. Die gesamte technische Infrastruktur wurde erneuert und unter anspruchsvollen Rahmenbedingungen an aktuelle Anforderungen von Brandschutz und Erdbebensicherheit angepasst. Besonderes Augenmerk galt der energetischen Ertüchtigung: Neue Fenster und Türen, verbesserte Dämmungen sowie eine Erdsonden-Wärmepumpenanlage ermöglichen einen nachhaltigen Betrieb. Der sommerliche und winterliche Wärmeschutz wurde durch eine nutzungsorientierte Beschattung weiter optimiert. Wo möglich, fanden historische Elemente wie Fensterbänke, Dachziegel oder Fensterläden erneut Verwendung.
Eingebettet in den Solitudepark verbindet die Museumsverwaltung heute Geschichte und Moderne zu einem inspirierenden Ort zeitgemäßen Arbeitens.


























