Werkstatt für behinderte Menschen und Medizinisches Versorgungszentrum
Neuwied-Engers, Deutschland
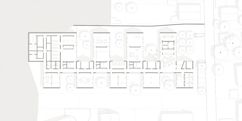
Der neue Typus einer Werkstatt für behinderte Menschen ist gekennzeichnet durch die Verknüpfung der Bereiche Arbeiten und Rekreation. Durch das geplante Doppelkammsystem mit versetzt angeordneten „Häusern“ entsteht ein lockeres mit den Außenräumen verflochtenes Netzwerk, so dass sich Arbeiten und Erholen ergänzen. Beim Neubau der Werkstatt und des Medizinischen Versorgungszentrums wird die Gefällesituation genutzt, um die Einrichtungen barrierefrei an die angrenzenden Straßen anzubinden. Im Inneren können sich alle Nutzer gleichberechtigt, unabhängig von ihrer Mobilität, ohne Aufzüge und Treppen bewegen.
- Architekten
- Waechter + Waechter Architekten
- Jahr
- 2020
- Projektstatus
- Gebaut
- Gutachterverfahren
- 2015, 1. Platz
Dazugehörige Projekte
Magazin
-
-
Bau der Woche
The Three-Body Problem: Trapped in a Wave Sandwich
Eduard Kögel, Scenic Architecture Office | 13.04.2026 -

























