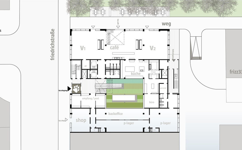
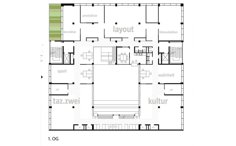
Wettbewerb „ein neues Haus für die taz“
Berlin Kreuzberg, Deutschland
Ausloberin:
die tageszeitung
Präsentation:
2014
ARGE mit:
czyborra klingbeil architekturwerkstatt
Programm:
Redaktionsgebäude, Veranstaltungsräume, Café
BGF:
7.000 qm
- Architekten
- Die Zusammenarbeiter
- Jahr
- 2014
- Projektstatus
- Design
- Team
- carpaneto.schöningh architekten, c.s architekten, silvia carpaneto, czyborra klingbeil architekturwerkstatt, cka
Dazugehörige Projekte
Magazin
-
-
Bau der Woche
The Three-Body Problem: Trapped in a Wave Sandwich
Eduard Kögel, Scenic Architecture Office | 13.04.2026 -












