Zac Des Docks in St. Quen
Rue des Bateliers, Saint-Ouen, Frankreich
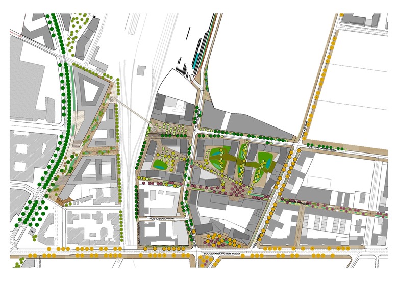
Masterplan of the Docks area (old port facilities on the River Seine) with an extension of 175 ha, Saint Ouen municipality, Paris metropolitan area. Public space, green areas and urban mobility system.
With Makan Rafatjou, Bernard Reichen, Hélène Saudecerre & Amador Ferrer
- Architekten
- Espinàs i Tarrasó SCP
- Jahr
- 2013
- Projektstatus
- Gebaut








