Zentrallager Württembergisches Staatstheater
Stuttgart, Deutschland
3. Rang, EU-weiter offener Architekten- und Investorenwettbewerb
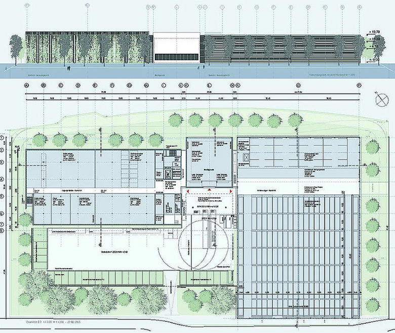
Es soll ein Zentrallager BRI = ca. 135 000 m³ mit Betriebshof und Transportmitteln errichtet und finanziert werden. Das Zentrallagergebäude besteht aus einem 3-geschossigen konventionellen Lager, einer Montagehalle mit Brückenkrananlage und einem Kulissenlager mit einer verfahrbaren Hochregalanlage auf einer Grundstücks-fläche von ca. 19.170 m². Grundlagen für die schlüssel-fertige Abwicklung ist u.a. eine Leistungsbeschreibung mit Leistungsprogramm und ein Bauerrichtungs- und Finanzierungsvertrag.
- Architekten
- Schädler & Zwerger Architekten
- Jahr
- 2005
- Projektstatus
- Design






