Citygate Tower
Aufgabe – Wohnhochhaus mit geförderten Wohnungen sowie freifinanzierten Einheiten in den obersten Ebenen
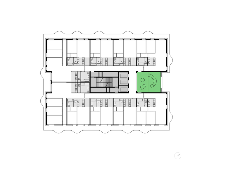
Antwort – Teilweise mehrgeschossige Gemeinschaftsräume werden über sämtliche Geschosse verteilt und liegen gegenüber der Lifte. Interne Kommunikation der Bewohner wird durch diese vertikale Dorfstraße stimuliert.
Ein reduziertes konstruktives System ermöglicht flexible, erweiterbare, zusammenschaltbare Wohnungsgrundrisse. die Balkonzone erhält Erweiterungen, die sich als poetisches Fassadenspiel artikulieren. Tiefe Fensternischen bieten Geborgenheit.
- Jahr
- 2015
- Projektstatus
- Gebaut
- Bauherrschaft
- Stumpf Development GmbH - Bauhilfe
- querkraft Partner
- Jakob Dunkl, Gerd Erhartt, Peter Sapp
- Mitarbeit
- Dominik Bertl, Karo Hofer, Isabel Espinoza, Olaf Härtel, Stefanie Meyer, Mechthild Weber
- Haustechnik
- ZFG-Projekt GmbH
- Statik
- KS Ingenieure
- Bauphysik
- Roland Müller
- Farbkonzept
- Heimo Zobernig
- Größe
- 25000 m2










