SAC Gaulihütte (Projektwettbewerb)

Die bestehende Gaulihütte soll, um den gestiegenen Ansprüchen der Berggänger und der Bewartung gerecht zu werden, durch einen Umbau verbessert werden. Ziel eines Wettbewerbs unter eingeladenen Büros war, die aus verschiedenen Zeiten bestehenden Bauteile neu zu ordnen und mit geeigneten Mitteln zu erweitern. Hauptproblem war dabei die angebaute, alte und geschützte Hütte von 1900. Dem mit noch mehr Anbauten kaum zu bewältigende, organisatorischen und gestalterischen Problemen musste mit einem konsequenten Eingriff begegnet werden: Dem Entfernen des geschützten Anbaus und Wiederaufbau im Freilichtmuseum, sowie einem einzigen, grossen Dach über der alten
Hüttenkonstruktion. Mit der bestehenden Hüttenkonstruktion in neuem Kleid und mit einem neuen Auftritt sollten nicht nur alle Probleme optimal gelöst werden, sondern auch neue Gäste ins Gauli geholt werden. Dabei sollte mit dem Lodge-Gedanken das wilde Gebiet einen neuen Aufschwung erhalten. Die Jury unter
resoluter Mitwirkung der Denkmalpflege entschied sich fürs Bewahren des «Alten» und neue, zusätzlichen Anbauten.

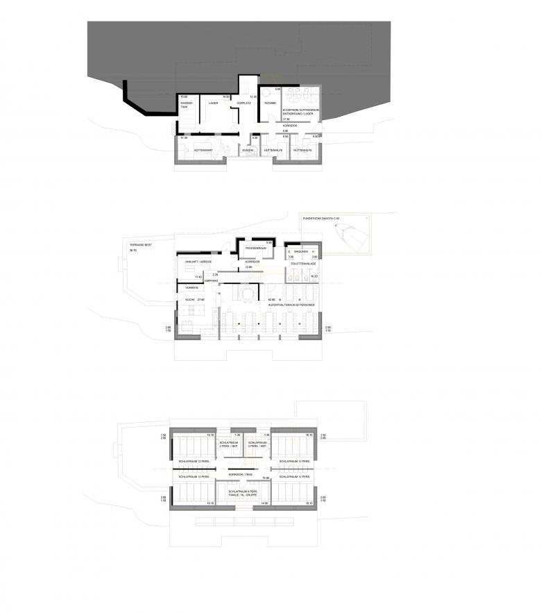
Grundrisse
Schnitte und Fassaden
Projektstatus
Design

Andere Projekte von RUCH ARCHITEKTEN 

Bergwelt
Grindelwald, Schweiz
Shell Fohlenweid
Bremgarten, Schweiz
Ersatzneubau Reichenbach Nord
Meiringen, Schweiz
City Center
Bremgarten, Schweiz
Galgenbuck (Richtprojekt)
Baden, Schweiz