MFH Luegislandstrasse, Zürich
Erneuerung Bäder und Küchen, Instandsetzung Gebäudehülle,
Aufstockung in vorfabrizierter Holzrahmenbauweise
Bauherrschaft: Carl Diener Söhne, Zürich
Anlagekosten BKP 1 – 9: Fr. 4’012'000.-
Der Auftrag umfasste ursprünglich nur die Erneuerung aller Badezimmer und Küchen und der Fenster. Die Fassaden wurden nicht nachgedämmt, das zweischalige Mauerwerk zeigte sich nach 30 Jahren in noch tadellosem Zustand.
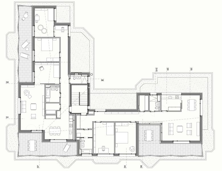
Über eine Machbarkeitsstudie konnte nachgewiesen werden, dass im Dachgeschoss zwei zusätzliche Wohnungen realisiert und selbsttragend vermietet werden können.
Der neue Dachaufbau wird über das um ein Geschoss erweiterte Treppenhaus im Scheitel des L-förmigen Gebäudekörpers erschlossen. Die Grundrisse wurden von innen heraus so entwickelt, dass aus dem strengen ‚Korsett’ der baurechtlichen Möglichkeiten optimale innen- und aussenräumliche Qualitäten erwachsen konnten.
Das stark gegliederte Volumen wird durch ein flach geneigtes Satteldach zusammengebunden, welches auch wesentlich den räumlichen Charakter des Innenraums bestimmt. Der First läuft, unabhängig von der Geometrie der darunterliegenden Wände, als zweimal geknickte Linie über das ganze Dach durch.
- Jahr
- 2013
- Projektstatus
- Gebaut

