OCAT Shenzhen Hall B10
Founded in 2005, as a famous avant-garde art institution in China, OCAT has a long-term mission to the practice and research in the field of contemporary art and theory both inside of China and in the international arena. B10, located at the east side of the main walkway in the OCT-LOFT’s north area, is a two-storey factory built in the early 90s and served as a tape and disk factory initially. The owner wants to complete it by adding functions, such as a library, lecture halls, restaurants, art shops, offices and storages, etc. to upgrade B10 to the headquarter of Shenzhen OCAT, where exhibition, research, communication and education can be carried out.
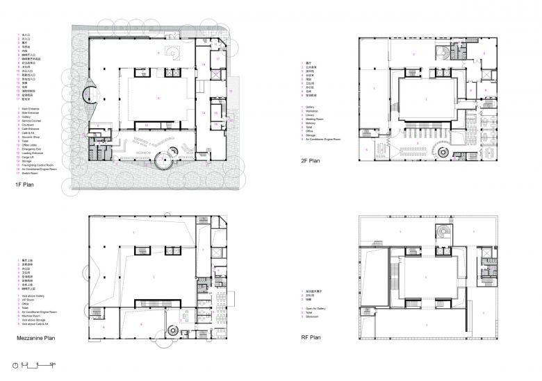
To create a ‘growing museum’, the center part is removed and an addition part is implanted from top to bottom. The ground floor offers temporary exhibition hall and art shop, which are opened to the public all the time. The core space of the second floor is occupied by a multifunctional hall and a library. The whole third floor serves as a ring-shaped open-air exhibition hall. Three core tubes connected all of the three floors and make the building open to the greatest extent.
- Jahr
- 2022
- Projektstatus
- Gebaut
- Bauherrschaft
- Shenzhen OCT Properties Co.,Ltd.
- (LDI) Structure/ MEP (Mechanical, Electrical, Plumbing)
- Tongji Architects
- Interior Design
- Shenzhen Republic Design & Engineering Co., Ltd.
- Landscape Design
- PASNO Landscape Design
- Facade
- PAG Façade Systems Co., Ltd
- Lighting Design
- RDesign International Lighting
- Logo Design
- HuangYang Design














































