Hochwasserpumpwerk
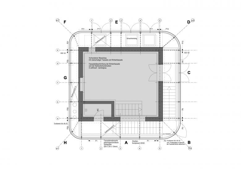
Im Rahmen der Hochwasserschutzmaßnahmen für Köln wurde am Rheinufer südlich von Rodenkirchen ein neues Pumpwerk als technisches Bauwerk errichtet. Aufgabenstellung des Wettbewerbs war die gestalterische Einbindung des größtenteils unterirdischen Bauwerks an dieser sensiblen Schnittstelle zwischen
Rheinufer, Wald und Bebauung.
Das unterirdische Pumpwerk wird zur Uferstraße hin mit einer geschwungenen Basalt-Bruchsteinmauer flankiert. Die technischen Aufbauten des neuen Pumpwerks und das Bestandsgebäude erhalten eine bis zu 8 Meter hohe Hülle aus plasmageschnittenem Stahl. Die nahtlose Struktur der perforierten Stahlplatten „umströmt“ die Gebäudeteile. Die filigrane Hülle und die geschwungene Natursteinmauer versinnbildlichen die Themen Ufer und Wasser.
Das Projekt wurde in Zusammenarbeit mit dem Landschaftsarchitekten
Dirk Melzer realisiert.
Auszeichnungen:
Mies-van-der-Rohe-Award 2011 (Nominierung)
Beispielhafte Bauten NRW 2010 (Auszeichnung)
Farbe-Struktur-Oberfläche 2010 (lobende Erwähnung)
Publikationen:
Deutsche Bauzeitung db 02/2011
Fassadentechnik 03/2010
- Jahr
- 2009
- Projektstatus
- Gebaut







